ChipFind - документация

Электронный компонент: MBM29DL640E

Скачать:  PDF   ZIP

Document Outline

DS05-20887-1E
FUJITSU SEMICONDUCTOR
DATA SHEET
FLASH MEMORY
CMOS
64 M (8 M
8/4 M
16) BIT
Dual Operation
MBM29DL640E
80/90/12
s
s
s
s
DESCRIPTION
The MBM29DL640E is a 64 M-bit, 3.0 V-only Flash memory organized as 8 Mbytes of 8 bits each or 4 Mwords
of 16 bits each. The device is offered in 48-pin TSOP (I) and 63-ball FBGA packages. This device is designed to
be programmed in system with 3.0 V V
CC
supply. 12.0 V V
PP
and 5.0 V V
CC
are not required for write or erase
operations. The device can also be reprogrammed in standard EPROM programmers.
The device is organized into four physical banks: Bank A, Bank B, Bank C and Bank D, which can be considered
to be four separate memory arrays as far as certain operations are concerned. This device is the same as Fujitsu's
standard 3 V only Flash memories with the additional capability of allowing a normal non-delayed read access
from a non-busy bank of the array while an embedded write (either a program or an erase) operation is simulta-
neously taking place on the other bank.
(Continued)
s
s
s
s
PRODUCT LINE UP
s
s
s
s
PACKAGES
Part No.
MBM29DL640E
Ordering Part No.
V
CC
=
3.3 V
80
V
CC
=
3.0 V
90
12
Max. Address Access Time (ns)
80
90
120
Max. CE Access Time (ns)
80
90
120
Max. OE Access Time (ns)
30
35
50
+
0.3 V
-
0.3 V
+
0.6 V
-
0.3 V
48-pin plastic TSOP (I)
48-pin plastic TSOP (I)
63-ball plastic FBGA
(FPT-48P-M19)
(FPT-48P-M20)
(BGA-63P-M02)
Marking Side
Marking Side
MBM29DL640E
80/90/12
2
(Continued)
In the device, a new design concept called FlexBank
TM
*
1
Architecture is implemented. Using this concept the
device can execute simultaneous operation between Bank 1, a bank chosen from among the four banks, and
Bank 2, a bank consisting of the three remaining banks. This means that any bank can be chosen as Bank 1.
(Refer to FUNCTIONAL DESCRIPTION for Simultaneous Operation.)
The standard device offers access times 80 ns, 90 ns and 120 ns, allowing operation of high-speed
microprocessors without the wait. To eliminate bus contention the device has separate chip enable (CE) , write
enable (WE) and output enable (OE) controls.
This device consists of pin and command set compatible with JEDEC standard E
2
PROMs. Commands are
written to the command register using standard microprocessor write timings. Register contents serve as input
to an internal state-machine which controls the erase and programming circuitry. Write cycles also internally
latch addresses and data needed for the programming and erase operations. Reading data out of the device is
similar to reading from 5.0 V and 12.0 V Flash or EPROM devices.
The device is programmed by executing the program command sequence. This will invoke the Embedded
Program Algorithm
TM
which is an internal algorithm that automatically times the program pulse widths and verifies
proper cell margin. Typically each sector can be programmed and verified in about 0.5 seconds. Erase is
accomplished by executing the erase command sequence. This will invoke the Embedded Erase Algorithm
TM
which is an internal algorithm that automatically preprograms the array if it is not already programmed before
executing the erase operation. During erase, the device automatically times the erase pulse widths and verifies
the proper cell margin.
A sector is typically erased and verified in 1.0 second (if already completely preprogrammed) .
The device also features a sector erase architecture. The sector mode allows each sector to be erased and
reprogrammed without affecting other sectors. The device is erased when shipped from the factory.
The device features single 3.0 V power supply operation for both read and write functions. Internally generated
and regulated voltages are provided for the program and erase operations. A low V
CC
detector automatically
inhibits write operations on the loss of power. The end of program or erase is detected by Data Polling of DQ
7
,
by the Toggle Bit feature on DQ
6
, or the RY/BY output pin. Once a program or erase cycle has been completed,
the device internally resets to the read mode.
The device also has a hardware RESET pin. When this pin is driven low, execution of any Embedded Program
Algorithm or Embedded Erase Algorithm is terminated. The internal state machine is then reset to the read
mode. The RESET pin may be tied to the system reset circuitry. Therefore if a system reset occurs during the
Embedded Program
TM
*
2
Algorithm or Embedded Erase
TM
*
2
Algorithm, the device is automatically reset to the
read mode and have erroneous data stored in the address locations being programmed or erased. These
locations need rewriting after the Reset. Resetting the device enables the system's microprocessor to read the
boot-up firmware from the Flash memory.
Fujitsu's Flash technology combines years of EPROM and E
2
PROM experience to produce the highest levels
of quality, reliability, and cost effectiveness. The device memory electrically erases the entire chip or all bits
within a sector simultaneously via Fowler-Nordhiem tunneling. The bytes/words are programmed one byte/word
at a time using the EPROM programming mechanism of hot electron injection.
*1: FlexBank
TM
is a trademark of Fujitsu Limited.
*2: Embedded Erase
TM
and Embedded Program
TM
are trademarks of Advanced Micro Devices, Inc.
MBM29DL640E
80/90/12
3
s
s
s
s
FEATURES
0.23
m Process Technology
Simultaneous Read/Write operations (Dual Bank)
FlexBank
TM
Bank A : 8 Mbit (8 KB
8 and 64 KB
15)
Bank B : 24 Mbit (64 KB
48)
Bank C : 24 Mbit (64 KB
48)
Bank D : 8 Mbit (8 KB
8 and 64 KB
15)
Two virtual Banks are chosen from the combination of four physical banks (Refer to Table 9, 10)
Host system can program or erase in one bank, and then read immediately and simultaneously from the other
bank with zero latency between read and write operations.
Read-while-erase
Read-while-program
Single 3.0 V read, program, and erase
Minimized system level power requirements
Compatible with JEDEC-standard commands
Uses the same software commands as E
2
PROMs
Compatible with JEDEC-standard world-wide pinouts
48-pin TSOP (I) (Package suffix : TN
-
Normal Bend Type, TR
-
Reversed Bend Type)
63-ball FBGA (Package suffix : PBT)
Minimum 100,000 program/erase cycles
High performance
80 ns maximum access time
Sector erase architecture
Sixteen 4 Kword and one hundred twenty-six 32 Kword sectors in word mode
Sixteen 8 Kbyte and one hundred twenty-six 64 Kbyte sectors in byte mode
Any combination of sectors can be concurrently erased. It also supports full chip erase.
Hidden ROM (Hi-ROM) region
256 byte of Hi-ROM, accessible through a new "Hi-ROM Enable" command sequence
Factory serialized and protected to provide a secure electronic serial number (ESN)
WP/ACC input pin
At V
IL
, allows protection of "outermost" 2
8 Kbytes on both ends of boot sectors, regardless of sector protection/
unprotection status
At V
IH
, allows removal of boot sector protection
At V
ACC
, increases program performance
Embedded Erase
TM
Algorithms
Automatically preprograms and erases the chip or any sector
Embedded Program
TM
Algorithms
Automatically writes and verifies data at specified address
(Continued)
MBM29DL640E
80/90/12
4
(Continued)
Data Polling and Toggle Bit feature for detection of program or erase cycle completion
Ready/Busy output (RY/BY)
Hardware method for detection of program or erase cycle completion
Automatic sleep mode
When addresses remain stable, the device automatically switches itself to low power mode.
Low V
CC
write inhibit
2.5 V
Program Suspend/Resume
Suspends the program operation to allow a read in another byte
Erase Suspend/Resume
Suspends the erase operation to allow a read data and/or program in another sector within the same device
Sector group protection
Hardware method disables any combination of sector groups from program or erase operations
Sector Group Protection Set function by Extended sector group protection command
Fast Programming Function by Extended Command
Temporary sector group unprotection
Temporary sector group unprotection via the RESET pin.
In accordance with CFI (Common Flash Memory Interface)
MBM29DL640E
80/90/12
5
s
s
s
s
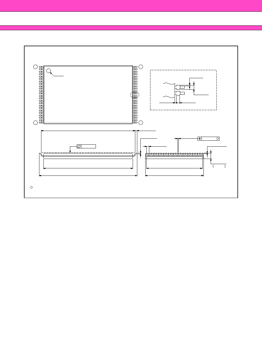
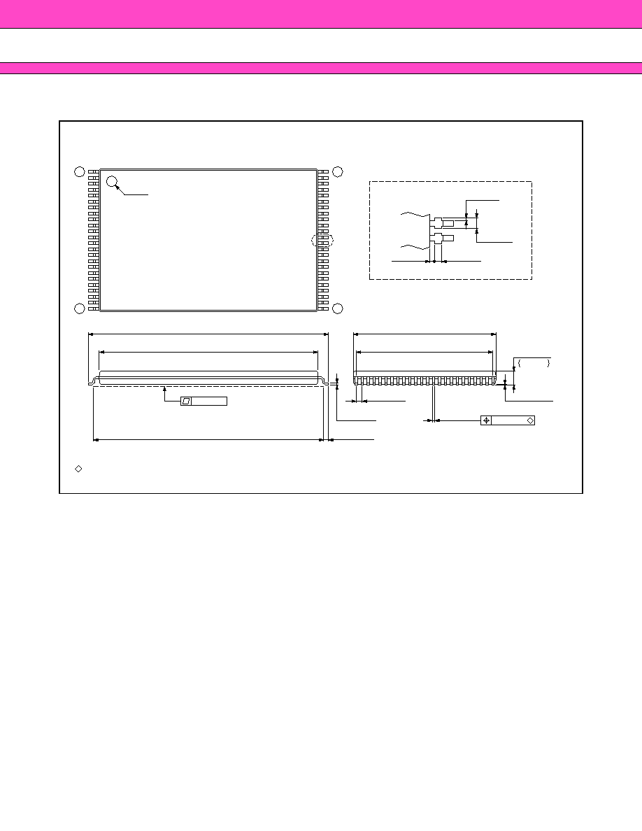
PIN ASSIGNMENTS
(Continued)
TSOP (I)
(FPT-48P-M19)
(FPT-48P-M20)
A
15
A
14
A
13
A
12
A
11
A
10
A
9
A
8
A
19
A
20
WE
RESET
A
21
WP/ACC
RY/BY
A
18
A
17
A
7
A
6
A
5
A
4
A
3
A
2
A
1
1
2
3
4
5
6
7
8
9
10
11
12
13
14
15
16
17
18
19
20
21
22
23
24
48
47
46
45
44
43
42
41
40
39
38
37
36
35
34
33
32
31
30
29
28
27
26
25
Standard Pinout
A
16
BYTE
V
SS
DQ
15
/A
-1
DQ
7
DQ
14
DQ
6
DQ
13
DQ
5
DQ
12
DQ
4
V
CC
DQ
11
DQ
3
DQ
10
DQ
2
DQ
9
DQ
1
DQ
8
DQ
0
OE
V
SS
CE
A
0
(Marking Side)
Reverse Pinout
A
0
CE
V
SS
OE
DQ
0
DQ
8
DQ
1
DQ
9
DQ
2
DQ
10
DQ
3
DQ
11
V
CC
DQ
4
DQ
12
DQ
5
DQ
13
DQ
6
DQ
14
DQ
7
DQ
15
/A
-1
V
SS
BYTE
A
16
24
23
22
21
20
19
18
17
16
15
14
13
12
11
10
9
8
7
6
5
4
3
2
1
25
26
27
28
29
30
31
32
33
34
35
36
37
38
39
40
41
42
43
44
45
46
47
48
A
1
A
2
A
3
A
4
A
5
A
6
A
7
A
17
A
18
RY/BY
WP/ACC
A
21
RESET
WE
A
20
A
19
A
8
A
9
A
10
A
11
A
12
A
13
A
14
A
15
(Marking Side)
MBM29DL640E
80/90/12
6
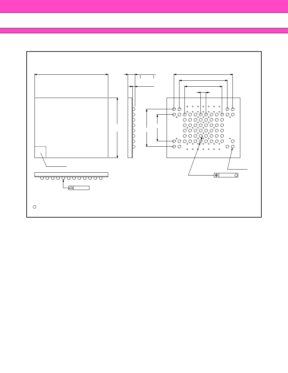
(Continued)
FBGA
(TOP VIEW)
(BGA-63P-M02)
A8
B8
L8
M8
N.C.
N.C.
N.C.
N.C.
A7
B7
C7
D7
E7
F7
G7
H7
J7
K7
L7
M7
N.C.
N.C.
A
13
A
12
A
14
A
15
A
16
BYTEDQ
15
/A
-1
V
SS
N.C.
N.C.
C6
D6
E6
F6
G6
H6
J6
K6
A
9
A
8
A
10
A
11
DQ
7
DQ
14
DQ
13
DQ
6
C5
D5
E5
F5
G5
H5
J5
K5
WE RESET
A
21
A
19
DQ
5
DQ
12
V
CC
DQ
4
C4
D4
E4
F4
G4
H4
J4
K4
RY/BY WP/ACC A
18
A
20
DQ
2
DQ
10
DQ
11
DQ
3
C3
D3
E3
F3
G3
H3
J3
K3
A
7
A
17
A
6
A
5
DQ
0
DQ
8
DQ
9
DQ
1
A2
C2
D2
E2
F2
G2
H2
J2
K2
L2
M2
N.C.
A
3
A
4
A
2
A
1
A
0
CE
OE
V
SS
N.C.
N.C.
A1
B1
L1
M1
N.C.
N.C.
N.C.
N.C.
(Marking Side)
MBM29DL640E
80/90/12
7
s
s
s
s
PIN DESCRIPTIONS
Table 1
MBM29DL640E Pin Configuration
Pin
Function
A
21
to A
0
, A
-1
Address Input
DQ
15
to DQ
0
Data Input/Output
CE
Chip Enable
OE
Output Enable
WE
Write Enable
RY/BY
Ready/Busy Output
RESET
Hardware Reset Pin/Temporary Sector Group Unprotection
BYTE
Selects 8-bit or 16-bit mode
WP/ACC
Hardware Write Protection/Program Acceleration
V
SS
Device Ground
V
CC
Device Power Supply
N.C.
No Internal Connection
MBM29DL640E
80/90/12
8
s
s
s
s
BLOCK DIAGRAM
s
s
s
s
LOGIC SYMBOL
V
CC
V
SS
A
21
to A
0
(A
-1
)
RESET
WE
CE
OE
BYTE
WP/ACC
DQ
15
to DQ
0
DQ
15
to
DQ
0
Bank A
address
Bank C Address
Bank B Address
Bank D
address
State
Control
&
Command
Register
Status
RY/BY
Control
Cell Matrix
8 Mbit
(Bank A)
X-Decoder
Y
-Gating
Cell Matrix
8 Mbit
(Bank D)
X-Decoder
Y
-Gating
Cell Matrix
24 Mbit
(Bank B)
X-Decoder
Y
-Gating
Cell Matrix
24 Mbit
(Bank C)
X-Decoder
Y
-Gating
22
A
21
to A
0
WE
OE
CE
DQ
0
to DQ
15
16 or 8
BYTE
RESET
A
-1
RY/BY
MBM29DL640E
80/90/12
9
s
s
s
s
DEVICE BUS OPERATION
Table 2
MBM29DL640E User Bus Operations (BYTE
=
V
IH
)
Legend : L
=
V
IL
, H
=
V
IH
, X
=
V
IL
or V
IH
,
=
Pulse input. See DC Characteristics for voltage levels.
*1: Manufacturer and device codes may also be accessed via a command register write sequence. SeeTable 4.
*2: Refer to section on Sector Group Protection.
*3: WE can be V
IL
if OE is V
IL
, OE at V
IH
initiates the write operations.
*4: V
CC
=
3.3 V
10
%
*5: It is also used for the extended sector group protection.
*6: Protect "outermost" 2
8 Kbytes (4 Kwords) on both ends of the boot block sectors.
(Continued)
Operation
CE
OE WE
A
0
A
1
A
2
A
3
A
6
A
9
DQ
15
to
DQ
0
RESET
WP/
ACC
Auto-Select Manufacturer
Code *
1
L
L
H
L
L
L
L
L
V
ID
Code
H
X
Auto-Select Device Code *
1
L
L
H
H
L
L
L
L
V
ID
Code
H
X
Extended Auto-Select Device
Code *
1
L
L
H
L
H
H
H
L
V
ID
Code
H
X
L
L
H
H
H
H
H
L
V
ID
Code
H
X
Read *
3
L
L
H
A
0
A
1
A
2
A
3
A
6
A
9
D
OUT
H
X
Standby
H
X
X
X
X
X
X
X
X
High-Z
H
X
Output Disable
L
H
H
X
X
X
X
X
X
High-Z
H
X
Write (Program/Erase)
L
H
L
A
0
A
1
A
2
A
3
A
6
A
9
D
IN
H
X
Enable Sector Group
Protection *
2,
*
4
L
V
ID
L
H
L
L
L
V
ID
X
H
X
Verify Sector Group Protection
*
2,
*
4
L
L
H
L
H
L
L
L
V
ID
Code
H
X
Temporary Sector Group
Unprotection *
5
X
X
X
X
X
X
X
X
X
X
V
ID
X
Reset (Hardware) /Standby
X
X
X
X
X
X
X
X
X
High-Z
L
X
Boot Block Sector Write
Protection *
6
X
X
X
X
X
X
X
X
X
X
X
L
MBM29DL640E
80/90/12
10
(Continued)
Table 3
MBM29DL640E User Bus Operations (BYTE
=
V
IL
)
Legend : L
=
V
IL
, H
=
V
IH
, X
=
V
IL
or V
IH
,
=
Pulse input. See DC Characteristics for voltage levels.
*1: Manufacturer and device codes may also be accessed via a command register write sequence. See Table 4.
*2: Refer to section on Sector Group Protection.
*3: WE can be V
IL
if OE is V
IL
, OE at V
IH
initiates the write operations.
*4: V
CC
=
3.3 V
10
%
*5: Also used for extended sector group protection.
*6: Protects "outermost" 2
8 Kbytes (4 Kwords) on both ends of the boot block sectors.
Operation
CE
OE WE
DQ
15
/A
-1
A
0
A
1
A
2
A
3
A
6
A
9
DQ
7
to DQ
0
RESET
WP/
ACC
Auto-Select
Manufacturer Code *
1
L
L
H
L
L
L
L
L
L
V
ID
Code
H
X
Auto-Select Device
Code *
1
L
L
H
L
H
L
L
L
L
V
ID
Code
H
X
Extended Auto-Select
Device Code *
1
L
L
H
L
L
H
H
H
L
V
ID
Code
H
X
L
L
H
L
H
H
H
H
L
V
ID
Code
H
X
Read *
3
L
L
H
A
-1
A
0
A
1
A
2
A
3
A
6
A
9
D
OUT
H
X
Standby
H
X
X
X
X
X
X
X
X
X
High-Z
H
X
Output Disable
L
H
H
X
X
X
X
X
X
X
High-Z
H
X
Write (Program/Erase)
L
H
L
A
-1
A
0
A
1
A
2
A
3
A
6
A
9
D
IN
H
X
Enable Sector Group
Protection *
2,
*
4
L
V
ID
L
L
H
L
L
L
V
ID
X
H
X
Verify Sector Group
Protection *
2,
*
4
L
L
H
L
L
H
L
L
L
V
ID
Code
H
X
Temporary Sector
Group Unprotection *
5
X
X
X
X
X
X
X
X
X
X
X
V
ID
X
Reset (Hardware) /
Standby
X
X
X
X
X
X
X
X
X
X
High-Z
L
X
Boot Block Sector Write
Protection *
6
X
X
X
X
X
X
X
X
X
X
X
X
L
MBM29DL640E
80/90/12
11
Table 4
MBM29DL640E Command Definitions
(Continued)
Command
Sequence
Bus
Write
Cy-
cles
Req'd
First Bus
Write Cycle
Second Bus
Write Cycle
Third Bus
Write Cycle
Fourth Bus
Read/Write
Cycle
Fifth Bus
Write Cycle
Sixth Bus
Write Cycle
Addr. Data Addr. Data Addr. Data Addr. Data Addr. Data Addr. Data
Read/
Reset
Word
1
XXXh
F0h
--
--
--
--
--
--
--
--
--
--
Byte
Read/
Reset
Word
3
555h
AAh
2AAh
55h
555h
F0h
RA
RD
--
--
--
--
Byte
AAAh
555h
AAAh
Autoselect
Word
3
555h
AAh
2AAh
55h
(BA)
555h
90h
--
--
--
--
--
--
Byte
AAAh
555h
(BA)
AAAh
Program
Word
4
555h
AAh
2AAh
55h
555h
A0h
PA
PD
--
--
--
--
Byte
AAAh
555h
AAAh
Program
Suspend
1
BA
B0h
--
--
--
--
--
--
--
--
--
--
Program Resume
1
BA
30h
--
--
--
--
--
--
--
--
--
--
Chip Erase
Word
6
555h
AAh
2AAh
55h
555h
80h
555h
AAh
2AAh
55h
555h
10h
Byte
AAAh
555h
AAAh
AAAh
555h
AAAh
Sector
Erase
Word
6
555h
AAh
2AAh
55h
555h
80h
555h
AAh
2AAh
55h
SA
30h
Byte
AAAh
555h
AAAh
AAAh
555h
Erase Suspend
1
BA
B0h
--
--
--
--
--
--
--
--
--
--
Erase Resume
1
BA
30h
--
--
--
--
--
--
--
--
--
--
Set to
Fast Mode
Word
3
555h
AAh
2AAh
55h
555h
20h
--
--
--
--
--
--
Byte
AAAh
555h
AAAh
Fast
Program *
1
Word
2
XXXh
A0h
PA
PD
--
--
--
--
--
--
--
--
Byte
XXXh
Reset from
Fast Mode
*
1
Word
2
BA
90h
XXXh
*
4
F0h
--
--
--
--
--
--
--
--
Byte
BA
XXXh
Extended
Sector
Group
Protection
*
2
Word
4
XXXh
60h
SPA
60h
SPA
40h
SPA
SD
--
--
--
--
Byte
Query
Word
1
(BA)
55h
98h
--
--
--
--
--
--
--
--
--
--
Byte
(BA)
AAh
MBM29DL640E
80/90/12
12
(Continued)
*1: This command is valid during Fast Mode.
*2: This command is valid while RESET
=
V
ID
.
*3: This command is valid during Hi-ROM mode.
*4: The data "00h" is also acceptable.
Notes : 1.
Address bits A
21
to A
11
=
X
=
"H" or "L" for all address commands except or Program Address (PA) , Sector
Address (SA) , Bank Address (BA) and Sector Group Address (SPA) .
2.
Bus operations are defined in Tables 2 and 3.
3.
RA
=
Address of the memory location to be read
PA
=
Address of the memory location to be programmed
Addresses are latched on the falling edge of the write pulse.
SA
=
Address of the sector to be erased. The combination of A
21
, A
20
, A
19
, A
18
, A
17
, A
16
, A
15
, A
14
, A
13
and
A
12
will uniquely select any sector.
BA
=
Bank Address. Address setted by A
21
, A
20
, A
19
will select Bank A, Bank B, Bank C and Bank D.
4.
RD
=
Data read from location RA during read operation.
PD
=
Data to be programmed at location PA. Data is latched on the falling edge of write pulse.
5.
SPA
=
Sector group address to be protected. Set sector group address and (A
6
, A
3
, A
2
, A
1
, A
0
)
=
(0, 0, 0, 1, 0) .
SD
=
Sector group protection verify data. Output 01h at protected sector group addresses and output
00h at unprotected sector group addresses.
6.
HRA
=
Address of the Hi-ROM area
Word Mode : 000000h to 00007Fh
Byte Mode : 000000h to 0000FFh
7.
HRBA
=
Bank Address of the Hi-ROM area (A
21
=
A
20
=
A
19
=
V
IL
)
8.
The system should generate the following address patterns:
Word Mode : 555h or 2AAh to addresses A
10
to A
0
Byte Mode : AAAh or 555h to addresses A
10
to A
0
, and A
-1
9.
Both Read/Reset commands are functionally equivalent, resetting the device to the read mode.
Command
Sequence
Bus
Write
Cy-
cles
Req'd
First Bus
Write Cycle
Second Bus
Write Cycle
Third Bus
Write Cycle
Fourth Bus
Read/Write
Cycle
Fifth Bus
Write Cycle
Sixth Bus
Write Cycle
Addr. Data Addr. Data Addr. Data Addr. Data Addr. Data Addr. Data
Hi-ROM
Entry
Word
3
555h
AAh
2AAh
55h
555h
88h
--
--
--
--
--
--
Byte
AAAh
555h
AAAh
Hi-ROM
Program *
3
Word
4
555h
AAh
2AAh
55h
555h
A0h
(HRA)
PA
PD
--
--
--
--
Byte
AAAh
555h
AAAh
Hi-ROM
Exit *
3
Word
4
555h
AAh
2AAh
55h
(HRBA)
555h
90h
XXXh
00h
--
--
--
--
Byte
AAAh
555h
(HRBA)
AAAh
MBM29DL640E
80/90/12
13
Table 5.1
MBM29DL640E Sector Group Protection Verify Autoselect Codes
*1 : A
-1
is for Byte mode.
*2 : Outputs 01h at protected sector group addresses and outputs 00h at unprotected sector group addresses.
*3 : When V
ID
is applied to A
9
, both Bank 1 and Bank 2 are put into Autoselect mode, which makes simultaneous
operation unable to be executed. Consequently, specifying the bank address is not required. However, the bank
address needs to be indicated when Autoselect mode is read out at command mode, because then it becomes
possible to activate simultaneous operation.
*4 : At WORD mode, a read cycle at address (BA) 01h (at BYTE mode, (BA) 02h) outputs device code. When 227Eh
(at BYTE mode, 7Eh) is output, it indicates that two additional codes, called Extended Device Codes, will be
required. Therefore the system may continue reading out these Extended Device Codes at the address of (BA)
0Eh (at BYTE mode, (BA) 1Ch) , as well as at (BA) 0Fh (at BYTE mode, (BA) 1Eh) .
Table 5.2
Expanded Autoselect Code Table
(B) : Byte mode
(W) : Word mode
Type
A
21
to A
12
A
6
A
3
A
2
A
1
A
0
A
-1
*1
Code (HEX)
Manufacture's Code
BA
*3
V
IL
V
IL
V
IL
V
IL
V
IL
V
IL
04h
Device Code
Byte
BA
*3
V
IL
V
IL
V
IL
V
IL
V
IH
V
IL
7Eh
Word
X
227Eh
Extended Device
Code
*4
Byte
BA
*3
V
IL
V
IH
V
IH
V
IH
V
IL
V
IL
02h
Word
X
2202h
Byte
BA
*3
V
IL
V
IH
V
IH
V
IH
V
IH
V
IL
01h
Word
X
2201h
Sector Group Protection
Sector Group
Addresses
V
IL
V
IL
V
IL
V
IH
V
IL
V
IL
01h
*2
Type
Code
DQ
15
DQ
14
DQ
13
DQ
12
DQ
11
DQ
10
DQ
9
DQ
8
DQ
7
DQ
6
DQ
5
DQ
4
DQ
3
DQ
2
DQ
1
DQ
0
Manufacturer's Code
04h
A
-1
/
0
0
0
0
0
0
0
0
0
0
0
0
0
1
0
0
Device Code
(B)
7Eh A
-1
HI-
Z
HI-
Z
HI-
Z
HI-
Z
HI-
Z
HI-
Z
HI-
Z
0
1
1
1
1
1
1
0
(W) 227Eh
0
0
1
0
0
0
1
0
0
1
1
1
1
1
1
0
Extended
Device Code
(B)
02h A
-1
HI-
Z
HI-
Z
HI-
Z
HI-
Z
HI-
Z
HI-
Z
HI-
Z
0
0
0
0
0
0
1
0
(W) 2202h
0
0
1
0
0
0
1
0
0
0
0
0
0
0
1
0
(B)
01h A
-1
HI-
Z
HI-
Z
HI-
Z
HI-
Z
HI-
Z
HI-
Z
HI-
Z
0
0
0
0
0
0
0
1
(W) 2201h
0
0
1
0
0
0
1
0
0
0
0
0
0
0
0
1
Sector Group
Protection
01h
A
-1
/
0
0
0
0
0
0
0
0
0
0
0
0
0
0
0
1
MBM29DL640E
80/90/12
14
s
s
s
s
FLEXIBLE SECTOR-ERASE ARCHITECTURE
Table 6.1
Sector Address Tables (Bank A)
Note : The address range is A
21
: A
-1
if in byte mode (BYTE
=
V
IL
) .
The address range is A
21
: A
0
if in word mode (BYTE
=
V
IH
) .
Bank
Sec-
tor
Sector Address
Sector
Size
(Kbytes/
Kwords)
(
8)
Address Range
(
16)
Address Range
Bank
Address
A
21
A
20
A
19
A
18
A
17
A
16
A
15
A
14
A
13
A
12
Bank
A
SA0
0
0
0
0
0
0
0
0
0
0
8/4
000000h to 001FFFh 000000h to 000FFFh
SA1
0
0
0
0
0
0
0
0
0
1
8/4
002000h to 003FFFh 001000h to 001FFFh
SA2
0
0
0
0
0
0
0
0
1
0
8/4
004000h to 005FFFh 002000h to 002FFFh
SA3
0
0
0
0
0
0
0
0
1
1
8/4
006000h to 007FFFh 003000h to 003FFFh
SA4
0
0
0
0
0
0
0
1
0
0
8/4
008000h to 009FFFh 004000h to 004FFFh
SA5
0
0
0
0
0
0
0
1
0
1
8/4
00A000h to 00BFFFh 005000h to 005FFFh
SA6
0
0
0
0
0
0
0
1
1
0
8/4
00C000h to 00DFFFh 006000h to 006FFFh
SA7
0
0
0
0
0
0
0
1
1
1
8/4
00E000h to 00FFFFh 007000h to 007FFFh
SA8
0
0
0
0
0
0
1
X
X
X
64/32
010000h to 01FFFFh 008000h to 00FFFFh
SA9
0
0
0
0
0
1
0
X
X
X
64/32
020000h to 02FFFFh 010000h to 017FFFh
SA10
0
0
0
0
0
1
1
X
X
X
64/32
030000h to 03FFFFh 018000h to 01FFFFh
SA11
0
0
0
0
1
0
0
X
X
X
64/32
040000h to 04FFFFh 020000h to 027FFFh
SA12
0
0
0
0
1
0
1
X
X
X
64/32
050000h to 05FFFFh 028000h to 02FFFFh
SA13
0
0
0
0
1
1
0
X
X
X
64/32
060000h to 06FFFFh 030000h to 037FFFh
SA14
0
0
0
0
1
1
1
X
X
X
64/32
070000h to 07FFFFh 038000h to 03FFFFh
SA15
0
0
0
1
0
0
0
X
X
X
64/32
080000h to 08FFFFh 040000h to 047FFFh
SA16
0
0
0
1
0
0
1
X
X
X
64/32
090000h to 09FFFFh 048000h to 04FFFFh
SA17
0
0
0
1
0
1
0
X
X
X
64/32
0A0000h to 0AFFFFh 050000h to 057FFFh
SA18
0
0
0
1
0
1
1
X
X
X
64/32
0B0000h to 0BFFFFh 058000h to 06FFFFh
SA19
0
0
0
1
1
0
0
X
X
X
64/32
0C0000h to 0CFFFFh 060000h to 067FFFh
SA20
0
0
0
1
1
0
1
X
X
X
64/32
0D0000h to 0DFFFFh 068000h to 06FFFFh
SA21
0
0
0
1
1
1
0
X
X
X
64/32
0E0000h to 0EFFFFh 070000h to 077FFFh
SA22
0
0
0
1
1
1
1
X
X
X
64/32
0F0000h to 0FFFFFh 078000h to 07FFFFh
MBM29DL640E
80/90/12
15
Table 6.2
Sector Address Tables (Bank B)
(Continued)
Bank
Sec-
tor
Sector Address
Sector
Size
(Kbytes
/
Kwords)
(
8)
Address Range
(
16)
Address Range
Bank
Address
A
21
A
20
A
19
A
18
A
17
A
16
A
15
A
14
A
13
A
12
Bank
B
SA23
0
0
1
0
0
0
0
X
X
X
64/32
100000h to 10FFFFh 080000h to 087FFFh
SA24
0
0
1
0
0
0
1
X
X
X
64/32
110000h to 11FFFFh 088000h to 08FFFFh
SA25
0
0
1
0
0
1
0
X
X
X
64/32
120000h to 12FFFFh 090000h to 097FFFh
SA26
0
0
1
0
0
1
1
X
X
X
64/32
130000h to 13FFFFh 098000h to 09FFFFh
SA27
0
0
1
0
1
0
0
X
X
X
64/32
140000h to 14FFFFh 0A0000h to 0A7FFFh
SA28
0
0
1
0
1
0
1
X
X
X
64/32
150000h to 15FFFFh 0A8000h to 0AFFFFh
SA29
0
0
1
0
1
1
0
X
X
X
64/32
160000h to 16FFFFh 0B0000h to 0B7FFFh
SA30
0
0
1
0
1
1
1
X
X
X
64/32
170000h to 17FFFFh 0B8000h to 0BFFFFh
SA31
0
0
1
1
0
0
0
X
X
X
64/32
180000h to 18FFFFh 0C0000h to 0C7FFFh
SA32
0
0
1
1
0
0
1
X
X
X
64/32
190000h to 19FFFFh 0C8000h to 0CFFFFh
SA33
0
0
1
1
0
1
0
X
X
X
64/32
1A0000h to 1AFFFFh 0D0000h to 0D7FFFh
SA34
0
0
1
1
0
1
1
X
X
X
64/32
1B0000h to 1BFFFFh 0D8000h to 0DFFFFh
SA35
0
0
1
1
1
0
0
X
X
X
64/32
1C0000h to 1CFFFFh 0E0000h to 0E7FFFh
SA36
0
0
1
1
1
0
1
X
X
X
64/32
1D0000h to 1DFFFFh 0E8000h to 0EFFFFh
SA37
0
0
1
1
1
1
0
X
X
X
64/32
1E0000h to 1EFFFFh 0F0000h to 0F7FFFh
SA38
0
0
1
1
1
1
1
X
X
X
64/32
1F0000h to 1FFFFFh 0F8000h to 0FFFFFh
SA39
0
1
0
0
0
0
0
X
X
X
64/32
200000h to 20FFFFh 100000h to 107FFFh
SA40
0
1
0
0
0
0
1
X
X
X
64/32
210000h to 21FFFFh 108000h to 10FFFFh
SA41
0
1
0
0
0
1
0
X
X
X
64/32
220000h to 22FFFFh 110000h to 117FFFh
SA42
0
1
0
0
0
1
1
X
X
X
64/32
230000h to 23FFFFh 118000h to 11FFFFh
SA43
0
1
0
0
1
0
0
X
X
X
64/32
240000h to 24FFFFh 120000h to 127FFFh
SA44
0
1
0
0
1
0
1
X
X
X
64/32
250000h to 25FFFFh 128000h to 12FFFFh
SA45
0
1
0
0
1
1
0
X
X
X
64/32
260000h to 26FFFFh 130000h to 137FFFh
SA46
0
1
0
0
1
1
1
X
X
X
64/32
270000h to 27FFFFh 138000h to 13FFFFh
SA47
0
1
0
1
0
0
0
X
X
X
64/32
280000h to 28FFFFh 140000h to 147FFFh
SA48
0
1
0
1
0
0
1
X
X
X
64/32
290000h to 29FFFFh 148000h to 14FFFFh
SA49
0
1
0
1
0
1
0
X
X
X
64/32
2A0000h to 2AFFFFh 150000h to 157FFFh
SA50
0
1
0
1
0
1
1
X
X
X
64/32
2B0000h to 2BFFFFh 158000h to 15FFFFh
SA51
0
1
0
1
1
0
0
X
X
X
64/32
2C0000h to 2CFFFFh 160000h to 167FFFh
SA52
0
1
0
1
1
0
1
X
X
X
64/32
2D0000h to 2DFFFFh 168000h to 16FFFFh
SA53
0
1
0
1
1
1
0
X
X
X
64/32
2E0000h to 2EFFFFh 170000h to 177FFFh
MBM29DL640E
80/90/12
16
(Continued)
Note : The address range is A
21
: A
-1
if in byte mode (BYTE
=
V
IL
) .
The address range is A
21
: A
0
if in word mode (BYTE
=
V
IH
) .
Bank
Sec-
tor
Sector Address
Sector
Size
(Kbytes
/
Kwords)
(
8)
Address Range
(
16)
Address Range
Bank
Address
A
21
A
20
A
19
A
18
A
17
A
16
A
15
A
14
A
13
A
12
Bank
B
SA54
0
1
0
1
1
1
1
X
X
X
64/32
2F0000h to 2FFFFFh 178000h to 17FFFFh
SA55
0
1
1
0
0
0
0
X
X
X
64/32
300000h to 30FFFFh 180000h to 187FFFh
SA56
0
1
1
0
0
0
1
X
X
X
64/32
310000h to 31FFFFh 188000h to 18FFFFh
SA57
0
1
1
0
0
1
0
X
X
X
64/32
320000h to 32FFFFh 190000h to 197FFFh
SA58
0
1
1
0
0
1
1
X
X
X
64/32
330000h to 33FFFFh 198000h to 19FFFFh
SA59
0
1
1
0
1
0
0
X
X
X
64/32
340000h to 34FFFFh 1A0000h to 1A7FFFh
SA60
0
1
1
0
1
0
1
X
X
X
64/32
350000h to 35FFFFh 1A8000h to 1AFFFFh
SA61
0
1
1
0
1
1
0
X
X
X
64/32
360000h to 36FFFFh 1B0000h to 1B7FFFh
SA62
0
1
1
0
1
1
1
X
X
X
64/32
370000h to 37FFFFh 1B8000h to 1BFFFFh
SA63
0
1
1
1
0
0
0
X
X
X
64/32
380000h to 38FFFFh 1C0000h to 1C7FFFh
SA64
0
1
1
1
0
0
1
X
X
X
64/32
390000h to 39FFFFh 1C8000h to 1CFFFFh
SA65
0
1
1
1
0
1
0
X
X
X
64/32
3A0000h to 3AFFFFh 1D0000h to 1D7FFFh
SA66
0
1
1
1
0
1
1
X
X
X
64/32
3B0000h to 3BFFFFh 1D8000h to 1DFFFFh
SA67
0
1
1
1
1
0
0
X
X
X
64/32
3C0000h to 3CFFFFh 1E0000h to 1E7FFFh
SA68
0
1
1
1
1
0
1
X
X
X
64/32
3D0000h to 3DFFFFh 1E8000h to 1EFFFFh
SA69
0
1
1
1
1
1
0
X
X
X
64/32
3E0000h to 3EFFFFh 1F0000h to 1F7FFFh
SA70
0
1
1
1
1
1
1
X
X
X
64/32
3F0000h to 3FFFFFh 1F8000h to 1FFFFFh
MBM29DL640E
80/90/12
17
Table 6.3
Sector Address Tables (Bank C)
(Continued)
Bank
Sec-
tor
Sector Address
Sector
Size
(Kbytes
/
Kwords)
(
8)
Address Range
(
16)
Address Range
Bank
Address
A
21
A
20
A
19
A
18
A
17
A
16
A
15
A
14
A
13
A
12
Bank
C
SA71
1
0
0
0
0
0
0
X
X
X
64/32
400000h to 40FFFFh 200000h to 207FFFh
SA72
1
0
0
0
0
0
1
X
X
X
64/32
410000h to 41FFFFh 208000h to 20FFFFh
SA73
1
0
0
0
0
1
0
X
X
X
64/32
420000h to 42FFFFh 210000h to 217FFFh
SA74
1
0
0
0
0
1
1
X
X
X
64/32
430000h to 43FFFFh 218000h to 21FFFFh
SA75
1
0
0
0
1
0
0
X
X
X
64/32
440000h to 44FFFFh 220000h to 227FFFh
SA76
1
0
0
0
1
0
1
X
X
X
64/32
450000h to 45FFFFh 228000h to 22FFFFh
SA77
1
0
0
0
1
1
0
X
X
X
64/32
460000h to 46FFFFh 230000h to 237FFFh
SA78
1
0
0
0
1
1
1
X
X
X
64/32
470000h to 47FFFFh 238000h to 23FFFFh
SA79
1
0
0
1
0
0
0
X
X
X
64/32
480000h to 48FFFFh 240000h to 247FFFh
SA80
1
0
0
1
0
0
1
X
X
X
64/32
490000h to 49FFFFh 248000h to 24FFFFh
SA81
1
0
0
1
0
1
0
X
X
X
64/32
4A0000h to 4AFFFFh 250000h to 257FFFh
SA82
1
0
0
1
0
1
1
X
X
X
64/32
4B0000h to 4BFFFFh 258000h to 25FFFFh
SA83
1
0
0
1
1
0
0
X
X
X
64/32
4C0000h to 4CFFFFh 260000h to 267FFFh
SA84
1
0
0
1
1
0
1
X
X
X
64/32
4D0000h to 4DFFFFh 268000h to 26FFFFh
SA85
1
0
0
1
1
1
0
X
X
X
64/32
4E0000h to 4EFFFFh 270000h to 277FFFh
SA86
1
0
0
1
1
1
1
X
X
X
64/32
4F0000h to 4FFFFFh 278000h to 27FFFFh
SA87
1
0
1
0
0
0
0
X
X
X
64/32
500000h to 50FFFFh 280000h to 287FFFh
SA88
1
0
1
0
0
0
1
X
X
X
64/32
510000h to 51FFFFh 288000h to 28FFFFh
SA89
1
0
1
0
0
1
0
X
X
X
64/32
520000h to 52FFFFh 290000h to 297FFFh
SA90
1
0
1
0
0
1
1
X
X
X
64/32
530000h to 53FFFFh 298000h to 29FFFFh
SA91
1
0
1
0
1
0
0
X
X
X
64/32
540000h to 54FFFFh 2A0000h to 2A7FFFh
SA92
1
0
1
0
1
0
1
X
X
X
64/32
550000h to 55FFFFh 2A8000h to 2AFFFFh
SA93
1
0
1
0
1
1
0
X
X
X
64/32
560000h to 56FFFFh 2B0000h to 2B7FFFh
SA94
1
0
1
0
1
1
1
X
X
X
64/32
570000h to 57FFFFh 2B8000h to 2BFFFFh
SA95
1
0
1
1
0
0
0
X
X
X
64/32
580000h to 58FFFFh 2C0000h to 2C7FFFh
SA96
1
0
1
1
0
0
1
X
X
X
64/32
590000h to 59FFFFh 2C8000h to 2CFFFFh
SA97
1
0
1
1
0
1
0
X
X
X
64/32
5A0000h to 5AFFFFh 2D0000h to 2D7FFFh
SA98
1
0
1
1
0
1
1
X
X
X
64/32
5B0000h to 5BFFFFh 2D8000h to 2DFFFFh
SA99
1
0
1
1
1
0
0
X
X
X
64/32
5C0000h to 5CFFFFh 2E0000h to 2EE7FFh
SA100
1
0
1
1
1
0
1
X
X
X
64/32
5D0000h to 5DFFFFh 2E8000h to 2EFFFFh
SA101
1
0
1
1
1
1
0
X
X
X
64/32
5E0000h to 5EFFFFh 2F0000h to 2F7FFFh
SA102
1
0
1
1
1
1
1
X
X
X
64/32
5F0000h to 5FFFFFh 2F8000h to 2FFFFFh
MBM29DL640E
80/90/12
18
(Continued)
Note : The address range is A
21
: A
-1
if in byte mode (BYTE
=
V
IL
) .
The address range is A
21
: A
0
if in word mode (BYTE
=
V
IH
) .
Bank
Sec-
tor
Sector Address
Sector
Size
(Kbytes
/
Kwords)
(
8)
Address Range
(
16)
Address Range
Bank
Address
A
21
A
20
A
19
A
18
A
17
A
16
A
15
A
14
A
13
A
12
Bank
C
SA103
1
1
0
0
0
0
0
X
X
X
64/32
600000h to 60FFFFh 300000h to 307FFFh
SA104
1
1
0
0
0
0
1
X
X
X
64/32
610000h to 61FFFFh 308000h to 30FFFFh
SA105
1
1
0
0
0
1
0
X
X
X
64/32
620000h to 62FFFFh 310000h to 317FFFh
SA106
1
1
0
0
0
1
1
X
X
X
64/32
630000h to 63FFFFh 318000h to 31FFFFh
SA107
1
1
0
0
1
0
0
X
X
X
64/32
640000h to 64FFFFh 320000h to 327FFFh
SA108
1
1
0
0
1
0
1
X
X
X
64/32
650000h to 65FFFFh 328000h to 32FFFFh
SA109
1
1
0
0
1
1
0
X
X
X
64/32
660000h to 66FFFFh 330000h to 337FFFh
SA110
1
1
0
0
1
1
1
X
X
X
64/32
670000h to 67FFFFh 338000h to 33FFFFh
SA111
1
1
0
1
0
0
0
X
X
X
64/32
680000h to 68FFFFh 340000h to 347FFFh
SA112
1
1
0
1
0
0
1
X
X
X
64/32
690000h to 69FFFFh 348000h to 34FFFFh
SA113
1
1
0
1
0
1
0
X
X
X
64/32
6A0000h to 6AFFFFh 350000h to 357FFFh
SA114
1
1
0
1
0
1
1
X
X
X
64/32
6B0000h to 6BFFFFh 358000h to 35FFFFh
SA115
1
1
0
1
1
0
0
X
X
X
64/32
6C0000h to 6CFFFFh 360000h to 367FFFh
SA116
1
1
0
1
1
0
1
X
X
X
64/32
6D0000h to 6DFFFFh 368000h to 36FFFFh
SA117
1
1
0
1
1
1
0
X
X
X
64/32
6E0000h to 6EFFFFh 370000h to 377FFFh
SA118
1
1
0
1
1
1
1
X
X
X
64/32
6F0000h to 6FFFFFh 378000h to 37FFFFh
MBM29DL640E
80/90/12
19
Table 6.4
Sector Address Tables (Bank D)
Note : The address range is A
21
: A
-1
if in byte mode (BYTE
=
V
IL
) .
The address range is A
21
: A
0
if in word mode (BYTE
=
V
IH
) .
Bank
Sec-
tor
Sector Address
Sector
Size
(Kbytes
/
Kwords)
(
8)
Address Range
(
16)
Address Range
Bank
Address
A
21
A
20
A
19
A
18
A
17
A
16
A
15
A
14
A
13
A
12
Bank
D
SA119
1
1
1
0
0
0
0
X
X
X
64/32
700000h to 70FFFFh 380000h to 387FFFh
SA120
1
1
1
0
0
0
1
X
X
X
64/32
710000h to 71FFFFh 388000h to 38FFFFh
SA121
1
1
1
0
0
1
0
X
X
X
64/32
720000h to 72FFFFh 390000h to 397FFFh
SA122
1
1
1
0
0
1
1
X
X
X
64/32
730000h to 73FFFFh 398000h to 39FFFFh
SA123
1
1
1
0
1
0
0
X
X
X
64/32
740000h to 74FFFFh 3A0000h to 3A7FFFh
SA124
1
1
1
0
1
0
1
X
X
X
64/32
750000h to 75FFFFh 3A8000h to 3AFFFFh
SA125
1
1
1
0
1
1
0
X
X
X
64/32
760000h to 76FFFFh 3B0000h to 3B7FFFh
SA126
1
1
1
0
1
1
1
X
X
X
64/32
770000h to 77FFFFh 3B8000h to 3BFFFFh
SA127
1
1
1
1
0
0
0
X
X
X
64/32
780000h to 78FFFFh 3C0000h to 3C7FFFh
SA128
1
1
1
1
0
0
1
X
X
X
64/32
790000h to 79FFFFh 3C8000h to 3CFFFFh
SA129
1
1
1
1
0
1
0
X
X
X
64/32
7A0000h to 7AFFFFh 3D0000h to 3D7FFFh
SA130
1
1
1
1
0
1
1
X
X
X
64/32
7B0000h to 7BFFFFh 3D8000h to 3DFFFFh
SA131
1
1
1
1
1
0
0
X
X
X
64/32
7C0000h to 7CFFFFh 3E0000h to 3E7FFFh
SA132
1
1
1
1
1
0
1
X
X
X
64/32
7D0000h to 7DFFFFh 3E8000h to 3EFFFFh
SA133
1
1
1
1
1
1
0
X
X
X
64/32
7E0000h to 7EFFFFh 3F0000h to 3F7FFFh
SA134
1
1
1
1
1
1
1
0
0
0
8/4
7F0000h to 7F1FFFh 3F8000h to 3F8FFFh
SA135
1
1
1
1
1
1
1
0
0
1
8/4
7F2000h to 7F3FFFh 3F9000h to 3F9FFFh
SA136
1
1
1
1
1
1
1
0
1
0
8/4
7F4000h to 7F5FFFh 3FA000h to 3FAFFFh
SA137
1
1
1
1
1
1
1
0
1
1
8/4
7F6000h to 7F7FFFh 3FB000h to 3FBFFFh
SA138
1
1
1
1
1
1
1
1
0
0
8/4
7F8000h to 7F9FFFh 3FC000h to 3FCFFFh
SA139
1
1
1
1
1
1
1
1
0
1
8/4
7FA000h to 7FBFFFh 3FD000h to 3FDFFFh
SA140
1
1
1
1
1
1
1
1
1
0
8/4
7FC000h to 7FDFFFh 3FE000h to 3FEFFFh
SA141
1
1
1
1
1
1
1
1
1
1
8/4
7FE000h to 7FFFFFh 3FF000h to 3FFFFFh
MBM29DL640E
80/90/12
20
Table 7
Sector Group Address Table
(Continued)
Sector Group
A
21
A
20
A
19
A
18
A
17
A
16
A
15
A
14
A
13
A
12
Sectors
SGA0
0
0
0
0
0
0
0
0
0
0
SA0
SGA1
0
0
0
0
0
0
0
0
0
1
SA1
SGA2
0
0
0
0
0
0
0
0
1
0
SA2
SGA3
0
0
0
0
0
0
0
0
1
1
SA3
SGA4
0
0
0
0
0
0
0
1
0
0
SA4
SGA5
0
0
0
0
0
0
0
1
0
1
SA5
SGA6
0
0
0
0
0
0
0
1
1
0
SA6
SGA7
0
0
0
0
0
0
0
1
1
1
SA7
SGA8
0
0
0
0
0
0
0
X
X
X
SA8 to SA10
0
1
1
0
SGA9
0
0
0
0
1
X
X
X
X
X
SA11 to SA14
SGA10
0
0
0
1
0
X
X
X
X
X
SA15 to SA18
SGA11
0
0
0
1
1
X
X
X
X
X
SA19 to SA22
SGA12
0
0
1
0
0
X
X
X
X
X
SA23 to SA26
SGA13
0
0
1
0
1
X
X
X
X
X
SA27 to SA30
SGA14
0
0
1
1
0
X
X
X
X
X
SA31 to SA34
SGA15
0
0
1
1
1
X
X
X
X
X
SA35 to SA38
SGA16
0
1
0
0
0
X
X
X
X
X
SA39 to SA42
SGA17
0
1
0
0
1
X
X
X
X
X
SA43 to SA46
SGA18
0
1
0
1
0
X
X
X
X
X
SA47 to SA50
SGA19
0
1
0
1
1
X
X
X
X
X
SA51 to SA54
SGA20
0
1
1
0
0
X
X
X
X
X
SA55 to SA58
SGA21
0
1
1
0
1
X
X
X
X
X
SA59 to SA62
SGA22
0
1
1
1
0
X
X
X
X
X
SA63 to SA66
SGA23
0
1
1
1
1
X
X
X
X
X
SA67 to SA70
MBM29DL640E
80/90/12
21
(Continued)
Sector Group
A
21
A
20
A
19
A
18
A
17
A
16
A
15
A
14
A
13
A
12
Sectors
SGA24
1
0
0
0
0
X
X
X
X
X
SA71 to SA74
SGA25
1
0
0
0
1
X
X
X
X
X
SA75 to SA78
SGA26
1
0
0
1
0
X
X
X
X
X
SA79 to SA82
SGA27
1
0
0
1
1
X
X
X
X
X
SA83 to SA86
SGA28
1
0
0
0
0
X
X
X
X
X
SA87 to SA90
SGA29
1
0
1
0
1
X
X
X
X
X
SA91 to SA94
SGA30
1
0
1
1
0
X
X
X
X
X
SA95 to SA98
SGA31
1
0
1
1
1
X
X
X
X
X
SA99 to SA102
SGA32
1
1
0
0
0
X
X
X
X
X
SA103 to SA106
SGA33
1
1
0
0
1
X
X
X
X
X
SA107 to SA110
SGA34
1
1
0
1
0
X
X
X
X
X
SA111 to SA114
SGA35
1
1
0
1
1
X
X
X
X
X
SA115 to SA118
SGA36
1
1
1
0
0
X
X
X
X
X
SA119 to SA122
SGA37
1
1
1
0
1
X
X
X
X
X
SA123 to SA126
SGA38
1
1
1
1
0
X
X
X
X
X
SA127 to SA130
SGA39
1
1
1
1
1
0
0
X
X
X
SA131 to SA133
0
1
1
0
SGA40
1
1
1
1
1
1
1
0
0
0
SA134
SGA41
1
1
1
1
1
1
1
0
0
1
SA135
SGA42
1
1
1
1
1
1
1
0
1
0
SA136
SGA43
1
1
1
1
1
1
1
0
1
1
SA137
SGA44
1
1
1
1
1
1
1
1
0
0
SA138
SGA45
1
1
1
1
1
1
1
1
0
1
SA139
SGA46
1
1
1
1
1
1
1
1
1
0
SA140
SGA47
1
1
1
1
1
1
1
1
1
1
SA141
MBM29DL640E
80/90/12
22
Description
A
6
to A
0
DQ
15
to DQ
0
Query-unique ASCII string "QRY"
10h
11h
12h
0051h
0052h
0059h
Primary OEM Command Set
2h : AMD/FJ standard type
13h
14h
0002h
0000h
Address for Primary Extended Table
15h
16h
0040h
0000h
Alternate OEM Command Set
(00h
=
not applicable)
17h
18h
0000h
0000h
Address for Alternate OEM Extended
Table
19h
1Ah
0000h
0000h
V
CC
Min. (write/erase)
D7-4 : 1 V, D3-0 : 100 mV
1Bh
0027h
V
CC
Max. (write/erase)
D7-4 : 1 V, D3-0 : 100 mV
1Ch
0036h
V
PP
Min. voltage
1Dh
0000h
V
PP
Max. voltage
1Eh
0000h
Typical timeout per single byte/word write
2
N
s
1Fh
0004h
Typical timeout for Min. size
buffer write 2
N
s
20h
0000h
Typical timeout per individual block erase
2
N
ms
21h
000Ah
Typical timeout for full chip erase 2
N
ms
22h
0000h
Max. timeout for byte/word write 2
N
times
typical
23h
0005h
Max. timeout for buffer write 2
N
times
typical
24h
0000h
Max. timeout per individual block erase 2
N
times typical
25h
0004h
Max. timeout for full chip erase 2
N
times
typical
26h
0000h
Device Size
=
2
N
byte
27h
0017h
Flash Device Interface
description
:
8 /
16
28h
29h
0002h
0000h
Max. number of bytes in
multi-byte write
=
2
N
2Ah
2Bh
0000h
0000h
Number of Erase Block Regions within
device
2Ch
0003h
Erase Block Region 1 Information
bit 0 to 15: y
=
number of sectors
bit 16 to 31: z
=
size
(z
256 bytes)
2Dh
2Eh
2Fh
30h
0007h
0000h
0020h
0000h
Erase Block Region 2 Information
bit 0 to 15: y
=
number of sectors
bit 16 to 31: z
=
size
(z
256 bytes)
31h
32h
33h
34h
007Dh
0000h
0000h
0001h
Erase Block Region 3 Information
bit 0 to 15: y
=
number of sectors
bit 16 to 31: z
=
size
(z
256 bytes)
35h
36h
37h
38h
0007h
0000h
0020h
0000h
Query-unique ASCII string "PRI"
40h
41h
42h
0050h
0052h
0049h
Major version number, ASCII
43h
0031h
Minor version number, ASCII
44h
0033h
Address Sensitive Unlock
0h
=
Required
1h
=
Not Required
45h
0000h
Erase Suspend
0h
=
Not Supported
1h
=
To Read Only
2h
=
To Read & Write
46h
0002h
Sector Protection
0h
=
Not Supported
X
=
Number of sectors per group
47h
0001h
Sector Temporary
Unprotection
00h
=
Not Supported
01h
=
Supported
48h
0001h
Sector Protection Algorithm
49h
0004h
Simultaneous Operation
00h
=
Not Supported
X
=
Total number of sectors in all banks
except Bank 1
4Ah
0077h
Burst Mode Type
00h
=
Not Supported
4Bh
0000h
Page Mode Type
00h
=
Not Supported
4Ch
0000h
ACC (Acceleration) Supply
Minimum
00h
=
Not Supported,
D7-4 : 1 V, D3-0 : 100 mV
4Dh
0085h
ACC (Acceleration) Supply
Maximum
00h
=
Not Supported,
D7-4 : 1 V, D3-0 : 100 mV
4Eh
0095h
Boot Type
4Fh
0001h
Program Suspend
00h
=
Not Supported
01h
=
Supported
50h
0001h
Bank Organization
00h
=
If data at 4Ah is zero.
X
=
Number of Banks
57h
0004h
Bank A Region Information
X
=
Number of sectors in Bank A
58h
0017h
Bank B Region Information
X
=
Number of sectors in Bank B
59h
0030h
Bank C Region Information
X
=
Number of sectors in Bank C
5Ah
0030h
Bank D Region Information
X
=
Number of sectors in Bank D
5Bh
0017h
Description
A
6
to A
0
DQ
15
to DQ
0
Table 8
Common Flash Memory Interface Code
MBM29DL640E
80/90/12
23
s
s
s
s
FUNCTIONAL DESCRIPTION
Simultaneous Operation
The device features functions that enable reading of data from one memory bank while a program or erase
operation is in progress in the other memory bank (simultaneous operation) , in addition to conventional features
(read, program, erase, erase-suspend read, and erase-suspend program) . The bank can be selected by bank
address (A
21
, A
20
, A
19
) with zero latency. The device consists of the following four banks :
Bank A : 8
8 KB and 15
64 KB; Bank B : 48
64 KB; Bank C : 48
64 KB; Bank D : 8
8 KB and 15
64 KB.
The device can execute simultaneous operations between Bank 1, a bank chosen from among the four banks,
and Bank 2, a bank consisting of the three remaining banks. (See Table 9.) This is what we call a "FlexBank",
for example, the rest of banks B, C and D to let the system read while Bank A is in the process of program (or
erase) operation. However, the different types of operations for the three banks are impossible, e.g. Bank A
writing, Bank B erasing, and Bank C reading out. With this "FlexBank", as described in Table 10, the system
gets to select from four combinations of data volume for Bank 1 and Bank 2, which works well to meet the system
requirement. The simultaneous operation cannot execute multi-function mode in the same bank. Table 11 shows
the possible combinations for simultaneous operation. (Refer to Figure 11 Bank-to-Bank Read/Write Timing
Diagram.)
Table 9
FlexBank
TM
Architecture
Table 10
Example of Virtual Banks Combination
Note : When multiple sector erase over several banks is operated, the system cannot read out of the bank to which
a sector being erased belongs. For example, suppose that erasing is taking place at both Bank A and Bank B,
neither Bank A nor Bank B is read out (they would output the sequence flag once they were selected.)
Meanwhile the system would get to read from either Bank C or Bank D.
Bank
Splits
Bank 1
Bank 2
Volume
Combination
Volume
Combination
1
8 Mbit
Bank A
56 Mbit
Remainder (Bank B, C, D)
2
24 Mbit
Bank B
40 Mbit
Remainder (Bank A, C, D)
3
24 Mbit
Bank C
40 Mbit
Remainder (Bank A, B, D)
4
8 Mbit
Bank D
56 Mbit
Remainder (Bank A, B, C)
Bank
Splits
Bank 1
Bank 2
Volume Combination
Sector Size
Volume Combination
Sector Size
1
8 Mbit
Bank A
8
8 Kbyte/4 Kword
+
15
64 Kbyte/32 Kword
56 Mbit
Bank B
+
Bank C
+
Bank D
8
8 Kbyte/4 Kword
+
111
64 Kbyte/32 Kword
2
16 Mbit
Bank A
+
Bank D
16
8 Kbyte/4 Kword
+
30
64 Kbyte/32 Kword
48 Mbit
Bank B
+
Bank C
96
64 Kbyte/32 Kword
3
24 Mbit
Bank B
48
64 Kbyte/32 Kword 40 Mbit
Bank A
+
Bank C
+
Bank D
16
8 Kbyte/4 Kword
+
78
64 Kbyte/32 Kword
4
32 Mbit
Bank A
+
Bank B
8
8 Kbyte/4 Kword
+
63
64 Kbyte/32 Kword
32 Mbit
Bank C
+
Bank D
8
8 Kbyte/4 Kword
+
63
64 Kbyte/32 Kword
MBM29DL640E
80/90/12
24
Table 11
Simultaneous Operation
* : By writing erase suspend command on the bank address of sector being erased, the erase operation gets
suspended so that it enables reading from or programming the remaining sectors.
Note: Bank 1 and Bank 2 are divided for the sake of convenience at Simultaneous Operation. Actually, the Bank
consists of 4 banks, Bank A, Bank B, BankC and Bank D. Bank Address (BA) meant to specify each of the
Banks.
Read Mode
The device has two control functions which are required in order to obtain data at the outputs. CE is the power
control and should be used for a device selection. OE is the output control and should be used to gate data to
the output pins.
Address access time (t
ACC
) is equal to delay from stable addresses to valid output data. The chip enable access
time (t
CE
) is the delay from stable addresses and stable CE to valid data at the output pins. The output enable
access time is the delay from the falling edge of OE to valid data at the output pins (assuming the addresses
have been stable for at least t
ACC
-t
OE
time) . When reading out data without changing addresses after power-up,
it is necessary to input hardware reset or to change CE pin from "H" or "L"
Standby Mode
There are two ways to implement the standby mode on the device, one using both the CE and RESET pins, and
the other via the RESET pin only.
When using both pins, a CMOS standby mode is achieved with CE and RESET input held at V
CC
0.3 V. Under
this condition the current consumed is less than 5
A Max. During Embedded Algorithm operation, V
CC
active
current (I
CC2
) is required even if CE
=
"H". The device can be read with standard access time (t
CE
) from either of
these standby modes.
When using the RESET pin only, a CMOS standby mode is achieved with RESET input held at V
SS
0.3 V (CE
=
"H" or "L") . Under this condition the current consumed is less than 5
A Max. Once the RESET pin is set high,
the device requires t
RH
as a wake-up time for output to be valid for read access.
During standby mode, the output is in the high impedance state, regardless of OE input.
Case
Bank 1 Status
Bank 2 Status
1
Read mode
Read mode
2
Read mode
Autoselect mode
3
Read mode
Program mode
4
Read mode
Erase mode *
5
Autoselect mode
Read mode
6
Program mode
Read mode
7
Erase mode *
Read mode
MBM29DL640E
80/90/12
25
Automatic Sleep Mode
Automatic sleep mode works to restrain power consumption during read-out of device data. It can be useful in
applications such as handy terminal, which requires low power consumption.
To activate this mode, the device automatically switches itself to low power mode when the device addresses
remain stable during access time of 150 ns. It is not necessary to control CE, WE and OE in this mode. In this
mode the current consumed is typically 1
A (CMOS Level) .
During simultaneous operation, V
CC
active current (I
CC2
) is required.
Since the data are latched during this mode, the data are continuously read out. When the addresses are
changed, the mode is automatically canceled and the device reads the data for changed addresses.
Output Disable
With the OE input at a logic high level (V
IH
) , output from the device is disabled. This will cause the output pins
to be in a high impedance state.
Autoselect
The Autoselect mode allows the reading out of a binary code and identifies its manufacturer and type.It is intended
for use by programming equipment for the purpose of automatically matching the device to be programmed with
its corresponding programming algorithm. This mode is functional over the entire temperature range of the device.
To activate this mode, the programming equipment must force V
ID
on address pin A
9
. Three identifier bytes may
then be sequenced from the device outputs by toggling addresses. All addresses are DON'T CARES except A
6
,
A
3
, A
2
, A
1
and A
0
(A
-1
) . (See Tables 2 and 3.)
The manufacturer and device codes may also be read via the command register, for instances when the device
is erased or programmed in a system without access to high voltage on the A
9
pin. The command sequence is
illustrated in Table 4. (Refer to Autoselect Command section.)
In the command Autoselect mode, the bank addresses BA; (A
21
, A
20
, A
19
) must point to a specific bank during
the third write bus cycle of the Autoselect command. Then the Autoselect data will be read from that bank while
array data can be read from the other bank.
In WORD mode, a read cycle from address 00h returns the manufacturer's code (Fujitsu
=
04h) . A read cycle
at address 01h outputs device code. When 227Eh is output, it indicates that two additional codes, called Extended
Device Codes will be required. Therefore the system may continue reading out these Extended Device Codes
at addresses of 0Eh and 0Fh. Notice that the above applies to WORD mode; the addresses and codes differ
from those of BYTE mode. (Refer to Table 5.1 and 5.2. )
In the case of applying V
ID
on A
9
, since both Bank 1 and Bank 2 enter Autoselect mode, simultanous operation
cannot be executed.
Write
Device erasure and programming are accomplished via the command register. The contents of the register serve
as input to the internal state machine. The state machine output dictates the function of the device.
The command register itself does not occupy any addressable memory location. The register is a latch used to
store the commands, along with the address and data information needed to execute the command. The com-
mand register is written by bringing WE to V
IL
, while CE is at V
IL
and OE is at V
IH
. Addresses are latched on the
falling edge of WE or CE, whichever happens later, while data is latched on the rising edge of WE or CE, whichever
happens first. Standard microprocessor write timings are used.
Refer to AC Write Characteristics and the Erase/Programming Waveforms for specific timing parameters.
MBM29DL640E
80/90/12
26
Sector Group Protection
The device features hardware sector group protection. This feature will disable both program and erase opera-
tions in any combination of forty eight sector groups of memory. (See Table 7) . The user`s side can use the
sector group protection using programming equipment. The device is shipped with all sector groups that are
unprotected.
To activate this mode, the programming equipment must force V
ID
on address pin A
9
and control pin OE, CE
=
V
IL
and A
6
=
A
3
=
A
2
=
A
0
=
V
IL
, A
1
=
V
IH
. The sector group addresses (A
21
, A
20
, A
19
, A
18
, A
17
, A
16
, A
15
, A
14
, A
13
and
A
12
) should be set to the sector to be protected. Tables 6.1 to 6.4 define the sector address for each of the one
hundred forty-two (142) individual sectors, and Table 7 defines the sector group address for each of the forty
eight (48) individual group sectors. Programming of the protection circuitry begins on the falling edge of the WE
pulse and is terminated with the rising edge of the same. Sector group addresses must be held constant during
the WE pulse. See Figures 18 and 26 for sector group protection waveforms and algorithms.
To verify programming of the protection circuitry, the programming equipment must force V
ID
on address pin A
9
with CE and OE at V
IL
and WE at V
IH
. Scanning the sector group addresses (A
21
, A
20
, A
19
, A
18
, A
17
, A
16
, A
15
, A
14
,
A
13
and A
12
) while (A
6
, A
3
, A
2
, A
1
, A
0
)
=
(0, 0, 0, 1, 0) will produce a logical "1" code at device output DQ
0
for a
protected sector. Otherwise the device will produce "0" for unprotected sectors. In this mode, the lower order
addresses, except for A
0
, A
1
, A
2
, A
3
and A
6
are DON'T CARES. Address locations with A
1
=
V
IL
are reserved for
Autoselect manufacturer and device codes. A
-1
requires applying to V
IL
on byte mode.
Whether the sector group is protected in the system can be determined by writing an Autoselect command.
Performing a read operation at the address location (BA) XX02h, where the higher order addresses (A
21
, A
20
,
A
19
, A
18
, A
17
, A
16
, A
15
, A
14
, A
13
, and A
12
) are the desired sector group address, will produce a logical "1" at DQ
0
for a protected sector group. Note that the bank addresses (A
21
, A
20
, A
19
) must be pointing to a specific bank
during the third write bus cycle of the Autoselect command. Then the Autoselect data can be read from that
bank while array data can still be read from the other bank. To read Autoselect data from the other bank, it must
be reset to read mode and then write the Autoselect command to the other bank. See Tables 5.1 and 5.2 for
Autoselect codes.
Temporary Sector Group Unprotection
This feature allows temporary unprotection of previously protected sector groups of the device in order to change
data. The Sector Group Unprotection mode is activated by setting the RESET pin to high voltage (V
ID
) . During
this mode, formerly protected sector groups can be programmed or erased by selecting the sector group ad-
dresses. Once the V
ID
is taken away from the RESET pin, all the previously protected sector groups will be
protected again. Refer to Figures 19 and 27.
Extended Sector Group Protection
In addition to normal sector group protection, the device has Extended Sector Group Protection as extended
function. This function enables protection of the sector group by forcing V
ID
on RESET pin and writes a command
sequence. Unlike conventional procedures, it is not necessary to force V
ID
and control timing for control pins.
The only RESET pin requires V
ID
for sector group protection in this mode. The extended sector group protection
requires V
ID
on RESET pin. With this condition the operation is initiated by writing the set-up command (60h) in
the command register. Then the sector group addresses pins (A
21
, A
20
, A
19
, A
18
, A
17
, A
16
, A
15
, A
14
, A
13
and A
12
)
and (A
6
, A
3
, A
2
, A
1
, A
0
)
=
(0, 0, 0, 1, 0) should be set to the sector group to be protected (setting V
IL
for the other
addresses pins is recommended) , and an extended sector group protection command (60h) should be written.
A sector group is typically protected in 250
s. To verify programming of the protection circuitry, the sector group
addresses pins (A
21
, A
20
, A
19
, A
18
, A
17
, A
16
, A
15
, A
14
, A
13
and A
12
) and (A
6
, A
3
, A
2
, A
1
, A
0
)
=
(0, 0, 0, 1, 0) should
be set a command (40h) should be written. Following the command write, a logical "1" at device output DQ
0
will
produce a protected sector in the read operation. If the output is logical "0", write the extended sector group
protection command (60h) again. To terminate the operation, it is necessary to set RESET pin to V
IH
. (Refer to
Figures 20 and 28.)
MBM29DL640E
80/90/12
27
RESET
Hardware Reset
The device may be reset by driving the RESET pin to V
IL
. The RESET pin has a pulse requirement and has to
be kept low (V
IL
) for at least "t
RP
" in order to properly reset the internal state machine. Any operation in the process
of being executed will be terminated and the internal state machine will be reset to the read mode "t
READY
" after
the RESET pin is driven low. Furthermore, once the RESET pin goes high the device requires an additional "t
RH
"
before it will allow read access. When the RESET pin is low, the device will be in the standby mode for the
duration of the pulse and all the data output pins will be tri-stated. If a hardware reset occurs during a program
or erase operation, the data at that particular location will be corrupted. Please note that the RY/BY output signal
should be ignored during the RESET pulse. See Figure 14 for the timing diagram. Refer to Temporary Sector
Group Unprotection for additional functionality.
Boot Block Sector Protection
The Write Protection function provides a hardware method of protecting certain boot sectors without using V
ID
.
This function is one of two provided by the WP/ACC pin.
If the system asserts V
IL
on the WP/ACC pin, the device disables program and erase functions in the two
outermost 8 Kbytes on both ends of boot sectors independently of whether those sectors are protected or
unprotected using the method described in "Sector Protection/Unprotection."
(MBM29DL640E : SA0, SA1, SA140, and SA141)
If the system asserts V
IH
on the WP/ACC pin, the device reverts to whether the two outermost 8 Kbyte on both
ends of boot sectors were last set to be protected or unprotected. Sector protection or unprotection for these
four sectors depends on whether they were last protected or unprotected using the method described in "Sector
protection/unprotection."
Accelerated Program Operation
The device offers accelerated program operation which enables programming in high speed. If the system asserts
V
ACC
to the WP/ACC pin, the device automatically enters the acceleration mode and the time required for program
operation will reduce to about 60
%
. This function is primarily intended to allow high speed programming, so
caution is needed as the sector group will temporarily be unprotected.
The system would use a fast program command sequence when programming during acceleration mode.
Set command to fast mode and reset command from fast mode are not necessary. When the device enters the
acceleration mode, the device is automatically set to fast mode. Therefore, the present sequence could be used
for programming and detection of completion during acceleration mode.
Removing V
ACC
from the WP/ACC pin returns the device to normal operation. Do not remove V
ACC
from WP/
ACC pin while programming. See Figure 21.
MBM29DL640E
80/90/12
28
s
s
s
s
COMMAND DEFINITIONS
Device operations are selected by writing specific address and data sequences into the command register. Some
commands require Bank Address (BA) input. When command sequences are input into a bank reading, the
commands have priority over the reading. Table 4 shows the valid register command sequences. Note that the
Erase Suspend (B0h) and Erase Resume (30h) commands are valid only while the Sector Erase operation is
in progress. Also the Program Suspend (B0h) and Program Resume (30h) commands are valid only while the
Program operation is in progress. Moreover, Read/Reset commands are functionally equivalent, resetting the
device to the read mode. Please note that commands are always written at DQ
7
to DQ
0
and DQ
15
to DQ
8
bits
are ignored.
Read/Reset Command
In order to return from Autoselect mode or Exceeded Timing Limits (DQ
5
=
1) to Read/Reset mode, the Read/
Reset operation is initiated by writing the Read/Reset command sequence into the command register. Micro-
processor read cycles retrieve array data from the memory. The device remains enabled for reads until the
command register contents are altered.
The device will automatically power-up in the Read/Reset state. In this case a command sequence is not required
in order to read data. Standard microprocessor read cycles will retrieve array data. This default value ensures
that no spurious alteration of the memory content occurs during the power transition. Refer to AC Read Char-
acteristics and Timing Diagram for the specific timing parameters.
Autoselect Command
Flash memories are intended for use in applications where the local CPU alters memory contents. Therefore,
manufacture and device codes must be accessible while the device resides in the target system. PROM pro-
grammers typically access the signature codes by raising A
9
to a higher voltage. However, multiplexing high
voltage onto the address lines is not generally desired system design practice.
The device contains an Autoselect command operation to supplement traditional PROM programming method-
ology. The operation is initiated by writing the Autoselect command sequence into the command register.
The Autoselect command sequence is initiated first by writing two unlock cycles. This is followed by a third write
cycle that contains the bank address (BA) and the Autoselect command. Then the manufacture and device
codes can be read from the bank, and actual data from the memory cell can be read from another bank. The
higher order address (A
21
, A
20
, A
19
) required for reading out the manufacture and device codes demands the
bank address (BA) set at the third write cycle.
Following the command write, in WORD mode, a read cycle from address (BA) 00h returns the manufacturer's
code (Fujitsu
=
04h) . And a read cycle at address (BA) 01h outputs device code. When 227Eh was output, this
indicates that two additional codes, called Extended Device Codes will be required. Therefore the system may
continue reading out these Extended Device Codes at the address of (BA) 0Eh, as well as at (BA) 0Fh. Notice
that the above applies to WORD mode. The addresses and codes differ from those of BYTE mode. (Refer to
Table 5.1 and 5.2. )
The sector state (protection or unprotection) will be informed by address (BA) 02h for
16 ( (BA) 04h for
8) .
Scanning the sector group addresses (A
21
, A
20
, A
19
, A
18
, A
17
, A
16
, A
15
, A
14
, A
13
, and A
12
) while (A
6
, A
3
, A
2
, A
1
, A
0
)
=
(0, 0, 0, 1, 0) will produce a logical "1" at device output DQ
0
for a protected sector group. The programming
verification should be performed by verifying sector group protection on the protected sector. (See Tables 2 and 3.)
The manufacture and device codes can be read from the selected bank. To read the manufacture and device
codes and sector protection status from a non-selected bank, it is necessary to write the Read/Reset command
sequence into the register. Autoselect command should then be written into the bank to be read.
If the software (program code) for Autoselect command is stored in the Flash memory, the device and manu-
facture codes should be read from the other bank, which does not contain the software.
To terminate the operation, it is necessary to write the Read/Reset command sequence into the register. To
execute the Autoselect command during the operation, Read/Reset command sequence must be written before
the Autoselect command.
MBM29DL640E
80/90/12
29
Byte/Word Programming
The device is programmed on a byte-by-byte (or word-by-word) basis. Programming is a four bus cycle operation.
There are two "unlock" write cycles. These are followed by the program set-up command and data write cycles.
Addresses are latched on the falling edge of CE or WE, whichever happens later, and the data is latched on the
rising edge of CE or WE, whichever happens first. The rising edge of CE or WE (whichever happens first) starts
programming. Upon executing the Embedded Program Algorithm command sequence, the system is not required
to provide further controls or timings. The device will automatically provide adequate internally generated pro-
gram pulses and verify the programmed cell margin.
The system can determine the status of the program operation by using DQ
7
(Data Polling) , DQ
6
(Toggle Bit)
or RY/BY. The Data Polling and Toggle Bit must be performed at the memory location which is being programmed.
The automatic programming operation is completed when the data on DQ
7
is equivalent to data written to this
bit at which time the device returns to the read mode and addresses are no longer latched (see Table 12,
Hardware Sequence Flags). Therefore, the device requires that a valid address to the device be supplied by the
system in this particular instance. Hence, Data Polling must be performed at the memory location which is being
programmed.
If hardware reset occurs during the programming operation, the data being written is not guaranteed.
Programming is allowed in any sequence and across sector boundaries. Beware that a data "0" cannot be
programmed back to a "1". Attempting to do so may either hang up the device or result in an apparent success
according to the data polling algorithm but a read from Read/Reset mode will show that the data is still "0". Only
erase operations can convert from "0"s to "1"s.
Figure 22 illustrates the Embedded Program
TM
Algorithm using typical command strings and bus operations.
Program Suspend/Resume
The Program Suspend command allows the system to interrupt a program operation so that data can be read
from any address. Writing the Program Suspend command (B0h) during the Embedded Program operation
immediately suspends the programming. The Program Suspend command may also be issued during a pro-
gramming operation while an erase is suspended. The bank addresses of sector being programmed should be
set when writing the Program Suspend command.
When the Program Suspend command is written during a programming process, the device halts the program
operation within 1
s and updates the status bits.
After the program operation has been suspended, the system can read data from any address. The data at
program-suspended address is not valid. Normal read timing and command definitions apply.
After the Program Resume command (30h) is written, the device reverts to programming. The bank addresses
of sectors being suspended should be set when writing the Program Resume command. The system can
determine the status of the program operation using the DQ
7
or DQ
6
status bits, just as in the standard program
operation. See "Write Operation Status" for more information.
The system may also write the Autoselect command sequence when the device in the Program Suspend mode.
The device allows reading Autoselect codes at the addresses within programming sectors, since the codes are
not stored in the memory. When the device exits the Autoselect mode, the device reverts to the Program Suspend
mode, and is ready for another valid operation. See "Autoselect Command Sequence" for more information.
The system must write the Program Resume command (address bits are "Bank Address") to exit from the
Program Suspend mode and continue the programming operation. Further writes of the Resume command are
ignored. Another Program Suspend command can be written after the device has resumed programming.
Chip Erase
Chip erase is a six bus cycle operation. There are two "unlock" write cycles. These are followed by writing the
"set-up" command. Two more "unlock" write cycles are then followed by the chip erase command.
Chip erase does not require the user to program the device prior to erase. Upon executing the Embedded Erase
Algorithm command sequence, the device will automatically program and verify the entire memory for an all-
MBM29DL640E
80/90/12
30
zero data pattern prior to electrical erase (Preprogram function) . The system is not required to provide any
controls or timings during these operations.
The system can determine the status of the erase operation by using DQ
7
(Data Polling) , DQ
6
(Toggle Bit) or
RY/BY. The chip erase begins on the rising edge of the last CE or WE, whichever happens first in the command
sequence, and terminates when the data on DQ
7
is "1" (see Write Operation Status section), at which time the
device returns to the read mode.
Chip Erase Time; Sector Erase Time
All sectors
+
Chip Program Time (Preprogramming)
Figure 23 illustrates the Embedded Erase
TM
Algorithm using typical command strings and bus operations.
Sector Erase
Sector erase is a six bus cycle operation. There are two "unlock" write cycles. These are followed by writing the
"set-up" command. Two more "unlock" write cycles are then followed by the Sector Erase command. The sector
address (any address location within the desired sector) is latched on the falling edge of CE or WE, whichever
happens later, while the command (Data
=
30h) is latched on the rising edge of CE or WE, whichever happens
first. After time-out of "t
TOW
" from the rising edge of the last sector erase command, the sector erase operation
begins.
Multiple sectors may be erased concurrently by writing the six bus cycle operations on Table 4. This sequence
is followed by writes of the Sector Erase command to addresses in other sectors desired to be concurrently
erased. The time between writes must be less than "t
TOW
". Otherwise, that command will not be accepted and
erasure will not start. It is recommended that processor interrupts be disabled during this time to guarantee such
a condition. The interrupts can reoccur after the last Sector Erase command is written. A time-out of "t
TOW
" from
the rising edge of last CE or WE, whichever happens first, will initiate the execution of the Sector Erase command
(s) . If another falling edge of CE or WE, whichever happens first occurs within the "t
TOW
" time-out window, the
timer is reset (monitor DQ
3
to determine if the sector erase timer window is still open, see section DQ
3
, Sector
Erase Timer). Resetting the device once execution has begun will corrupt the data in the sector. In that case,
restart the erase on those sectors and allow them to complete (refer to Write Operation Status section for Sector
Erase Timer operation). Loading the sector erase buffer may be done in any sequence and with any number of
sectors (0 to 141) .
Sector erase does not require the user to program the device before erase. The device automatically programs
all memory locations in the sector (s) to be erased prior to electrical erase (Preprogram function) . When erasing
a sector, the rest remain unaffected. The system is not required to provide any controls or timings during these
operations.
The system can determine the status of the erase operation by using DQ
7
(Data Polling) , DQ
6
(Toggle Bit) or
RY/BY.
The sector erase begins after the "t
TOW
" time-out from the rising edge of CE or WE, whichever happens first, for
the last sector erase command pulse and terminates when the data on DQ
7
is "1" (see Write Operation Status
section), at which time the device returns to the read mode. Data polling and Toggle Bit must be performed at
an address within any of the sectors being erased.
Multiple Sector Erase Time
=
[Sector Erase Time
+
Sector Program Time (Preprogramming) ]
Number of
Sector Erase
In case of multiple sector erase across bank boundaries, a read from the bank (read-while-erase) to which
sectors being erased belong cannot be performed.
Figure 23 illustrates the Embedded Erase
TM
Algorithm using typical command strings and bus operations.
Erase Suspend/Resume
The Erase Suspend command allows the user to interrupt Sector Erase operation and then reads data from or
programs to a sector not being erased. This command is applicable ONLY during the Sector Erase operation
which includes the time-out period for sector erase. Writing the Erase Suspend command (B0h) during the Sector
Erase time-out results in immediate termination of the time-out period and suspension of the erase operation.
MBM29DL640E
80/90/12
31
Writing the Erase Resume command (30h) resumes the erase operation. The bank address of sector being
erased or erase-suspended should be set when writing the Erase Suspend or Erase Resume command.
When the Erase Suspend command is written during the Sector Erase operation, the device takes a maximum
of "t
SPD
" to suspend the erase operation. When the device has entered the erase-suspended mode, the
RY/BY output pin will be at Hi-Z and the DQ
7
bit will be at logic "1", and DQ
6
will stop toggling. The user must
use the address of the erasing sector for reading DQ
6
and DQ
7
to determine if the erase operation has been
suspended. Further writes of the Erase Suspend command are ignored.
When the erase operation has been suspended, the device defaults to the erase-suspend-read mode. Reading
data in this mode is the same as reading from the standard read mode, except that the data must be read from
sectors that have not been erase-suspended. Reading successively from the erase-suspended sector while the
device is in the erase-suspend-read mode will cause DQ
2
to toggle (see the section on DQ
2
).
After entering the erase-suspend-read mode, the user can program the device by writing the appropriate com-
mand sequence for Program. This program mode is known as the erase-suspend-program mode. Again, it is
the same as programming in the regular Program mode, except that the data must be programmed to sectors
that are not erase-suspended. Reading successively from the erase-suspended sector while the device is in the
erase-suspend-program mode will cause DQ
2
to toggle. The end of the erase-suspended Program operation is
detected by the RY/BY output pin, Data polling of DQ
7
or by the Toggle Bit I (DQ
6
), which is the same as the
regular Program operation. Note that DQ
7
must be read from the Program address while DQ
6
can be read from
any address within bank being erase-suspended.
To resume the operation of Sector Erase, the Resume command (30h) should be written to the bank being erase
suspended. Any further writes of the Resume command at this point will be ignored. Another Erase Suspend
command can be written after the chip has resumed erasing.
Extended Command
(1) Fast Mode
The device has a Fast Mode function. It dispenses with the initial two unclock cycles required in the standard
program command sequence by writing the Fast Mode command into the command register. In this mode, the
required bus cycle for programming consists of two bus cycles instead of four in standard program command.
Do not write erase command in this mode. The read operation is also executed after exiting from the fast mode.
To exit from this mode, it is necessary to write Fast Mode Reset command into the command register. The first
cycle must contain the bank address (see Figure 29) .The V
CC
active current is required even if CE
=
V
IH
during
Fast Mode.
(2) Fast Programming
During Fast Mode, programming can be executed with two bus cycle operation. The Embedded Program Algo-
rithm is executed by writing program set-up command (A0h) and data write cycles (PA/PD) (see Figure 29) .
(3) CFI (Common Flash Memory Interface)
The CFI (Common Flash Memory Interface) specification outlines device and the host system software interro-
gation handshake, which allows specific vendor-specified software algorithms to be used for entire families of
devices. This allows device-independent, JEDEC ID-independent and forward-and backward-compatible soft-
ware support for the specified flash device families. Refer to CFI specification in detail.
The operation is initiated by writing the query command (98h) into the command register. The bank address
should be set when writing this command. Then the device information can be read from the bank, and data
from the memory cell can be read from the another bank. The higher order address (A
21
, A
20
, A
19
) required for
reading out the CFI Codes requires that the bank address (BA) be set at the write cycle. Following the command
write, a read cycle from specific address retrieves device information. Please note that output data of upper byte
(DQ
15
to DQ
8
) is "0" in word mode (16 bit) read. Refer to CFI code table (Table 12) . To terminate operation, it is
necessary to write the read/reset command sequence into the register.
MBM29DL640E
80/90/12
32
Hidden ROM (Hi-ROM) Region
The Hi-ROM feature provides a Flash memory region that the system may access through a new command
sequence. This is primarily intended for customers who wish to use an Electronic Serial Number (ESN) in the
device with the ESN protected against modification. Once the Hi-ROM region is protected, any further modifi-
cation of that region becomes impossible. This ensures the security of the ESN once the product is shipped to
the field.
The Hi-ROM region is 256 bytes in length and is stored at the same address of the "outermost" 8 Kbyte boot
sector in Bank A. The device occupies the address of the byte mode 000000h to 0000FFh (word mode 000000h
to 00007Fh) . After the system has written the Enter Hi-ROM command sequence, the system may read the Hi-
ROM region by using the addresses normally occupied by the boot sector (particular area of SA0) . That is, the
device sends all commands that would normally be sent to the boot sector (particular area of SA0) to the Hi-
ROM region. This mode of operation continues until the system issues the Exit Hi-ROM command sequence,
or until power is removed from the device. On power-up, or following a hardware reset, the device reverts to
sending commands to the boot sector.
When reading the Hi-ROM region, either change addresses or change CE pin from "H" to "L". The same procedure
should be taken (changing addresses or CE pin from "H" to "L") after the system issues the Exit Hi-ROM command
sequence to read actual memory cell data.
Hidden ROM (Hi-ROM) Entry Command
The device has a Hidden ROM area with One Time Protect function. This area is to enter the security code and
to unable the change of the code once set. Programming is allowed in this area until it is protected. However,
once it gets protected, it is impossible to unprotect. Therefore, extreme caution is required.
The hidden ROM area is 256 bytes. This area is normally the "outermost" 8 Kbyte boot block area in Bank A.
Therefore, write the Hidden ROM entry command sequence to enter the Hidden ROM area. It is called Hidden
ROM mode when the Hidden ROM area appears.
Sectors other than the boot block area SA0 can be read during Hidden ROM mode. Read/program of the Hidden
ROM area is possible during Hidden ROM mode. Write the Hidden ROM reset command sequence to exit the
Hidden ROM mode. The bank address of the Hidden ROM should be set on the third cycle of this reset command
sequence.
In Hidden ROM mode, the simultaneous operation cannot be executed multi-function mode between the Hidden
ROM area and the Bank A.
Hidden ROM (Hi-ROM) Program Command
To program the data to the Hidden ROM area, write the Hidden ROM program command sequence during Hidden
ROM mode. This command is the same as the usual program command, except that it needs to write the
command during Hidden ROM mode. Therefore the detection of completion method is the same as in the past,
using the DQ
7
data pooling, DQ
6
toggle bit and RY/BY pin. You should pay attention to the address to be
programmed. If an address not in the Hidden ROM area is selected, the previous data will be deleted.
Hidden ROM (Hi-ROM) Protect Command
There are two methods to protect the Hidden ROM area. One is to write the sector group protect setup command
(60h) , set the sector address in the Hidden ROM area and (A
6
, A
3
, A
2
, A
1
, A
0
)
=
(0, 0, 0, 1, 0) , and write the
sector group protect command (60h) during the Hidden ROM mode. The same command sequence may be
used because it is the same as the extension sector group protect in the past, except that it is in the Hidden
ROM mode and does not apply high voltage to the RESET pin. Please refer to "Function Explanation Extended
Sector Group Protection" for details of extension sector group protect setting.
The other method is to apply high voltage (V
ID
) to A
9
and OE, set the sector address in the Hidden ROM area
and (A
6
, A
3
, A
2
, A
1
, A
0
)
=
(0, 0, 0, 1, 0) , and apply the write pulse during the Hidden ROM mode. To verify the
protect circuit, apply high voltage (V
ID
) to A
9
, specify (A
6
, A
3
, A
2
, A
1
, A
0
)
=
(0, 0, 0, 1, 0) and the sector address
in the Hidden ROM area, and read. When "1" appears on DQ
0
, the protect setting is completed. "0" will appear
on DQ
0
if it is not protected. Apply write pulse again. The same command sequence could be used for the above
MBM29DL640E
80/90/12
33
method because other than the Hidden ROM mode, it is the same as the sector group protect previously
mentioned. Refer to "Function Explanation Secor Group Protection" for details of the sector group protect setting.
Take note that other sector groups will be affected if an address other than those for the Hidden ROM area is
selected for the sector group address, so please be careful. Pay close attention that once it is protected, protection
CANNOT BE CANCELLED.
Write Operation Status
Detailed in Table 12 are all the status flags which can determine the status of the bank for the current mode
operation. The read operation from the bank which doesn't operate Embedded Algorithm returns data of memory
cells. These bits offer a method for determining whether an Embedded Algorithm is properly completed. The
information on DQ
2
is address-sensitive. This means that if an address from an erasing sector is consecutively
read, the DQ
2
bit will toggle. However, DQ
2
will not toggle if an address from a non-erasing sector is consecutively
read. This allows users to determine which sectors are in erase and which are not.
The status flag is not output from banks (non-busy banks) which do not execute Embedded Algorithms. For
example, a bank (busy bank) is executing an Embedded Algorithm. When the read sequence is [1]
<
busy bank
>
, [2]
<
non-busy bank
>
, [3]
<
busy bank
>
, the DQ
6
toggles in the case of [1] and [3]. In case of [2], the data
of memory cells are output. In the erase-suspend read mode with the same read sequence, DQ
6
will not be
toggled in [1] and [3].
In the erase suspend read mode, DQ
2
is toggled in [1] and [3]. In case of [2], the data of memory cell is output.
Table 12
Hardware Sequence Flags
*1: Successive reads from the erasing or erase-suspend sector will cause DQ
2
to toggle.
*2: Reading from non-erase suspend sector address will indicate logic "1" at the DQ
2
bit.
Notes: 1. DQ
0
and DQ
1
are reserve pins for future use.
2. DQ
4
is limited to Fujitsu internal use.
Status
DQ
7
DQ
6
DQ
5
DQ
3
DQ
2
In Progress
Embedded Program Algorithm
DQ
7
Toggle
0
0
1
Embedded Erase Algorithm
0
Toggle
0
1
Toggle *
1
Program
Suspended
Mode
Program Suspend Read
(Program Suspended Sector)
Data
Data
Data
Data
Data
Program Suspend Read
(Non-Program Suspended Sec-
tor)
Data
Data
Data
Data
Data
Erase
Suspended
Mode
Erase Suspend Read
(Erase Suspended Sector)
1
1
0
0
Toggle
Erase Suspend Read
(Non-Erase Suspended Sector)
Data
Data
Data
Data
Data
Erase Suspend Program
(Non-Erase Suspended Sector)
DQ
7
Toggle
0
0
1 *
2
Exceeded
Time Limits
Embedded Program Algorithm
DQ
7
Toggle
1
0
1
Embedded Erase Algorithm
0
Toggle
1
1
N/A
Erase
Suspended
Mode
Erase Suspend Program
(Non-Erase Suspended Sector)
DQ
7
Toggle
1
0
N/A
MBM29DL640E
80/90/12
34
DQ
7
Data Polling
The device features Data Polling as a method to indicate to the host that the Embedded Algorithms are in
progress or completed. During the Embedded Program Algorithm, an attempt to read the device will produce a
complement of data last written to DQ
7
. Upon completion of the Embedded Program Algorithm, an attempt to
read the device will produce true data last written to DQ
7
. During the Embedded Erase Algorithm, an attempt to
read the device will produce a "0" at the DQ
7
output. Upon completion of the Embedded Erase Algorithm, an
attempt to read device will produce a "1" on DQ
7
. The flowchart for Data Polling (DQ
7
) is shown in Figure 24.
For programming, the Data Polling is valid after the rising edge of the fourth write pulse in the four write pulse
sequences.
For chip erase and sector erase, the Data Polling is valid after the rising edge of the sixth write pulse in the six
write pulse sequences. Data Polling must be performed at sector addresses of sectors being erased, not pro-
tected sectors. Otherwise the status may become invalid.
If a program address falls within a protected sector, Data Polling on DQ
7
is active for approximately 1
s, then
that bank returns to the read mode. After an erase command sequence is written, if all sectors selected for
erasing are protected, Data Polling on DQ
7
is active for approximately 400
s, then the bank returns to read mode.
Once the Embedded Algorithm operation is close to being completed, the device data pins (DQ
7
) may change
asynchronously while the output enable (OE) is asserted low. This means that device is driving status information
on DQ
7
at one instant, and then that byte's valid data at the next instant. Depending on when the system samples
the DQ
7
output, it may read the status or valid data. Even if device has completed the Embedded Algorithm
operation and DQ
7
has a valid data, data outputs on DQ
0
to DQ
6
may still be invalid. The valid data on DQ
0
to
DQ
7
will be read on successive read attempts.
The Data Polling feature is active only during the Embedded Programming Algorithm, Embedded Erase Algorithm
or sector erase time-out. (See Table 12.)
See Figure 9 for the Data Polling timing specifications and diagrams.
DQ
6
Toggle Bit I
The device also features the "Toggle Bit I" as a method to indicate to the host system that the Embedded
Algorithms are in progress or completed.
During Embedded Program or Erase Algorithm cycle, successive attempts to read (OE toggling) data from the
busy bank will result in DQ
6
toggling between one and zero. Once the Embedded Program or Erase Algorithm
cycle is completed, DQ
6
will stop toggling and valid data will be read on the next successive attempts. During
programming, the Toggle Bit I is valid after the rising edge of the fourth write pulse in the four write pulse
sequences. For chip erase and sector erase, the Toggle Bit I is valid after the rising edge of the sixth write pulse
in the six write pulse sequences. The Toggle Bit I is active during the sector time out.
In programming, if the sector being written is protected, the toggle bit will toggle for about 1
s and then stop
toggling with data unchanged. In erase, the device will erase all selected sectors except for protected ones. If
all selected sectors are protected, the chip will toggle the toggle bit for about 400 s and then drop back into
read mode, having data kept remained.
Either CE or OE toggling will cause DQ
6
to toggle. In addition, an Erase Suspend/Resume command will cause
DQ
6
to toggle.
The system can use DQ
6
to determine whether a sector is actively erased or is erase-suspended. When a bank
is actively erased (that is, the Embedded Erase Algorithm is in progress) , DQ
6
toggles. When a bank enters the
Erase Suspend mode, DQ
6
stops toggling. Successive read cycles during erase-suspend-program cause DQ
6
to toggle.
To operate toggle bit function properly, CE or OE must be high when bank address is changed.
See Figure 10 for the Toggle Bit I timing specifications and diagrams.
MBM29DL640E
80/90/12
35
DQ
5
Exceeded Timing Limits
DQ
5
will indicate if the program or erase time has exceeded the specified limits (internal pulse count) . Under
these conditions DQ
5
will produce "1". This is a failure condition indicating that the program or erase cycle was
not successfully completed. Data Polling is only operating function of the device under this condition. The CE
circuit will partially power down device under these conditions (to approximately 2 mA) . The OE and WE pins
will control the output disable functions as described in Tables 2 and 3.
The DQ
5
failure condition may also appear if a user tries to program a non-blank location without pre-erase. In
this case the device locks out and never completes the Embedded Algorithm operation. Hence, the system never
reads valid data on DQ
7
bit and DQ
6
never stop toggling. Once the device has exceeded timing limits, the DQ
5
bit will indicate a "1." Please note that this is not a device failure condition since the device was incorrectly used.
If this occurs, reset device with the command sequence.
DQ
3
Sector Erase Timer
After completion of the initial sector erase command sequence, sector erase time-out begins. DQ
3
will remain
low until the time-out is completed. Data Polling and Toggle Bit are valid after the initial sector erase command
sequence.
If Data Polling or the Toggle Bit I indicates that a valid erase command has been written, DQ
3
may be used to
determine whether the sector erase timer window is still open. If DQ
3
is high ("1") the internally controlled erase
cycle has begun. If DQ
3
is low ("0") , the device will accept additional sector erase commands. To insure the
command has been accepted, the system software should check the status of DQ
3
prior to and following each
subsequent Sector Erase command. If DQ
3
were high on the second status check, the command may not have
been accepted.
See Table 12 : Hardware Sequence Flags.
DQ
2
Toggle Bit II
This toggle bit II, along with DQ
6
, can be used to determine whether the device is in the Embedded Erase
Algorithm or in Erase Suspend.
Successive reads from the erasing sector will cause DQ
2
to toggle during the Embedded Erase Algorithm. If the
device is in the erase-suspended-read mode, successive reads from the erase-suspended sector will cause
DQ
2
to toggle. When the device is in the erase-suspended-program mode, successive reads from
the non-erase
suspended sector will indicate a logic "1" at the DQ
2
bit.
DQ
6
is different from DQ
2
in that DQ
6
toggles only when the standard program or Erase, or Erase Suspend
Program operation is in progress. The behavior of these two status bits, along with that of DQ
7
, is summarized
as follows :
For example, DQ
2
and DQ
6
can be used together to determine if the erase-suspend-read mode is in progress.
(DQ
2
toggles while DQ
6
does not.) See also Table 13 and Figure 12.
Furthermore DQ
2
can also be used to determine which sector is being erased. At the erase mode, DQ
2
toggles
if this bit is read from an erasing sector.
To operate toggle bit function properly, CE or OE must be high when bank address is changed.
Reading Toggle Bits DQ
6
/DQ
2
Whenever the system initially begins reading toggle bit status, it must read DQ
7
to DQ
0
at least twice in a row
to determine whether a toggle bit is toggling. Typically a system would note and store the value of the toggle bit
after the first read. After the second read, the system would compare the new value of the toggle bit with the
first. If the toggle bit is not toggling, the device has completed the program or erase operation. The system can
read array data on DQ
7
to DQ
0
on the following read cycle.
MBM29DL640E
80/90/12
36
However, if, after the initial two read cycles, the system determines that the toggle bit is still toggling, the system
also should note whether the value of DQ
5
is high (see the section on DQ
5
) . If it is, the system should then
determine again whether the toggle bit is toggling, since the toggle bit may have stopped toggling just as DQ
5
went high. If the toggle bit is no longer toggling, the device has successfully completed the program or erase
operation. If it is still toggling, the device did not complete the operation successfully, and the system must write
the reset command to return to reading array data.
The remaining scenario is that the system initially determines that the toggle bit is toggling and DQ
5
has not
gone high. The system may continue to monitor the toggle bit and DQ
5
through successive read cycles, deter-
mining the status as described in the previous paragraph. Alternatively, it may choose to perform other system
tasks. In this case, the system must start at the beginning of the algorithm when it returns to determine the
status of the operation. (Refer to Figure 25.)
Table 13
Toggle Bit Status
Note : Successive reads from the erasing or erase-suspend sector will cause DQ
2
to toggle. Reading from the non-
erase suspend sector address will indicate logic "1" at the DQ
2
bit.
RY/BY
Ready/Busy
The device provides a RY/BY open-drain output pin as a way to indicate to the host system that Embedded
Algorithms are either in progress or have been completed. If output is low, the device is busy with either a program
or erase operation. If output is high, the device is ready to accept any read/write or erase operation. If the device
is placed in an Erase Suspend mode, RY/BY output will be high.
During programming, the RY/BY pin is driven low after the rising edge of the fourth write pulse. During an erase
operation, the RY/BY pin is driven low after the rising edge of the sixth write pulse. The RY/BY pin will indicate
a busy condition during RESET pulse. Refer to Figures 13 and 14 for a detailed timing diagram. The RY/BY pin
is pulled high in standby mode.
Since this is an open-drain output, RY/BY pins can be tied together in parallel with a pull-up resistor to V
CC
.
Byte/Word Configuration
BYTE pin selects byte (8-bit) mode or word (16-bit) mode for the device. When this pin is driven high, the device
operates in word (16-bit) mode. Data is read and programmed at DQ
15
to DQ
0
. When this pin is driven low, the
device operates in byte (8-bit) mode. In this mode, the DQ
15
/A
-1
pin becomes the lowest address bit, and DQ
14
to DQ
8
bits are tri-stated. However, the command bus cycle is always an 8-bit operation and hence commands
are written at DQ
7
to DQ
0
and DQ
15
to DQ
8
bits are ignored. Refer to Figures 15, 16 and 17 for the timing diagram.
Data Protection
The device is designed to offer protection against accidental erasure or programming caused by spurious system
level signals that may exist during power transitions. During power-up, the device automatically resets the internal
state machine in Read mode. Also, with its control register architecture, alteration of memory contents only
occurs after successful completion of specific multi-bus cycle command sequences.
The device also incorporates several features to prevent inadvertent write cycles resulting from V
CC
power-up
and power-down transitions or system noise.
Mode
DQ
7
DQ
6
DQ
2
Program
DQ
7
Toggle
1
Erase
0
Toggle
Toggle (Note)
Erase-Suspend Read
(Erase-Suspended Sector)
1
1
Toggle
Erase-Suspend Program
DQ
7
Toggle
1 (Note)
MBM29DL640E
80/90/12
37
Low V
CC
Write Inhibit
To avoid initiation of a write cycle during V
CC
power-up and power-down, a write cycle is locked out for V
CC
less
than V
LKO
(Min.) . If V
CC
<
V
LKO
, the command register is disabled and all internal program/erase circuits are
disabled. Under this condition, the device will reset to the read mode. Subsequent writes will be ignored until
the V
CC
level is greater than V
LKO
. It is the user's responsibility to ensure that the control pins are logically correct
to prevent unintentional writes when V
CC
is above V
LKO
(Min.) .
If the Embedded Erase Algorithm is interrupted, the intervened erasing sector (s) is (are) not valid.
Write Pulse "Glitch" Protection
Noise pulses of less than 3 ns (typical) on OE, CE or WE will not initiate a write cycle.
Logical Inhibit
Writing is inhibited by holding any one of OE
=
V
IL
, CE
=
V
IH
or WE
=
V
IH
. To initiate a write cycle CE and WE
must be a logical zero while OE is a logical one.
Power-Up Write Inhibit
Power-up of the device with WE
=
CE
=
V
IL
and OE
=
V
IH
will not accept commands on the rising edge of WE.
The internal state machine is automatically reset to the read mode on power-up.
MBM29DL640E
80/90/12
38
s
s
s
s
ABSOLUTE MAXIMUM RATINGS
Notes : 1.
Minimum DC voltage on input or I/O pins is
-
0.5 V. During voltage transitions, input or I/O pins may
undershoot V
SS
to
-
2.0 V for periods of up to 20 ns. Maximum DC voltage on input or I/O pins is
V
CC
+
0.5 V. During voltage transitions, input or I/O pins may overshoot to V
CC
+
2.0 V for periods of up to 20 ns.
2.
Minimum DC input voltage on A
9
, OE and RESET pins is
-
0.5 V. During voltage transitions, A
9
, OE and
RESET
pins may undershoot V
SS
to
-
2.0 V for periods of up to 20 ns. Voltage difference between input
and supply voltage (V
IN
- V
CC
) does not exceed
+
9.0 V. Maximum DC input voltage on A
9
, OE and RESET
pins is
+
13.0 V which may overshoot to
+
14.0 V for periods of up to 20 ns.
3.
Minimum DC input voltage on WP/ACC pin is
-
0.5 V. During voltage transitions, WP/ACC pin may
undershoot V
SS
to
-
2.0 V for periods of up to 20 ns. Maximum DC input voltage on WP/ACC pin is
+
10.5 V which may overshoot to
+
12.0 V for periods of up to 20 ns when Vcc is applied.
WARNING: Semiconductor devices can be permanently damaged by application of stress (voltage, current,
temperature, etc.) in excess of absolute maximum ratings. Do not exceed these ratings.
s
s
s
s
RECOMMENDED OPERATING RANGES
WARNING: The recommended operating conditions are required in order to ensure the normal operation of the
semiconductor device. All of the device's electrical characteristics are warranted when the device is
operated within these ranges.
Always use semiconductor devices within their recommended operating condition ranges. Operation
outside these ranges may adversely affect reliability and could result in device failure.
No warranty is made with respect to uses, operating conditions, or combinations not represented on
the data sheet. Users considering application outside the listed conditions are advised to contact their
FUJITSU representatives beforehand.
Operating ranges define those limits between which the proper device function is guaranteed.
Parameter
Symbol
Rating
Unit
Min.
Max.
Storage Temperature
Tstg
-
55
+
125
C
Ambient Temperature with Power Applied
Ta
-
40
+
85
C
Voltage with Respect to Ground All pins except A
9
,
OE, and RESET (Note 1)
V
IN
, V
OUT
-
0.5
V
CC
+
0.5
V
Power Supply Voltage (Note 1)
V
CC
-
0.5
+
4.0
V
A
9
, OE, and RESET (Note 2)
V
IN
-
0.5
+
13.0
V
WP/ACC (Note 3)
V
ACC
-
0.5
+
10.5
V
Parameter
Symbol
Part No.
Ranges
Unit
Min.
Max.
Ambient Temperature
Ta
MBM29DL640E 80
-
20
+
70
C
MBM29DL640E 90/12
-
40
+
85
C
Power Supply Voltage
V
CC
MBM29DL640E 80
+
3.0
+
3.6
V
MBM29DL640E 90/12
+
2.7
+
3.6
V
MBM29DL640E
80/90/12
39
s
s
s
s
MAXIMUM OVERSHOOT/UNDERSHOOT
+
0.6 V
-
0.5 V
20 ns
-
2.0 V
20 ns
20 ns
Figure 1
Maximum Undershoot Waveform
V
CC
+
0.5 V
+
2.0 V
V
CC
+
2.0 V
20 ns
20 ns
20 ns
Figure 2
Maximum Overshoot Waveform 1
+
13.0 V
V
CC
+
0.5 V
+
14.0 V
20 ns
20 ns
20 ns
Figure 3
Maximum Overshoot Waveform 2
Note : This waveform is applied for A9, OE and RESET.
MBM29DL640E
80/90/12
40
s
s
s
s
ELECTRICAL CHARACTERISTICS
1.
DC Characteristics
*1: The I
CC
current listed includes both the DC operating current and the frequency dependent component.
*2: I
CC
active while Embedded Algorithm (program or erase) is in progress.
*3: Automatic sleep mode enables the low power mode when address remain stable for 150 ns.
*4: Applicable for only V
CC
.
*5: Embedded Algorithm (program or erase) is in progress. (@5 MHz)
Parameter
Symbol
Conditions
Value
Unit
Min.
Typ.
Max.
Input Leakage Current
I
LI
V
IN
=
V
SS
to V
CC
, V
CC
=
V
CC
Max.
-
1.0
+
1.0
A
Output Leakage Current
I
LO
V
OUT
=
V
SS
to V
CC
, V
CC
=
V
CC
Max.
-
1.0
+
1.0
A
A
9
, OE, RESET Inputs Leakage
Current
I
LIT
V
CC
=
V
CC
Max.,
A
9
, OE, RESET
=
12.5 V
+
35
A
WP/ACC Accelerated Program
Current
I
LIA
V
CC
=
V
CC
Max.
WP/ACC
=
V
ACC
Max.
20
mA
V
CC
Active Current *
1
I
CC1
CE
=
V
IL
, OE
=
V
IH
,
f
=
5 MHz
Byte
16
mA
Word
18
CE
=
V
IL
, OE
=
V
IH
,
f
=
1 MHz
Byte
7
mA
Word
7
V
CC
Active Current *
2
I
CC2
CE
=
V
IL
, OE
=
V
IH
40
mA
V
CC
Current (Standby)
I
CC3
V
CC
=
V
CC
Max., CE
=
V
CC
0.3 V,
RESET
=
V
CC
0.3 V
WP/ACC
=
V
CC
0.3 V
1
5
A
V
CC
Current (Standby, Reset)
I
CC4
V
CC
=
V
CC
Max.,
RESET
=
V
SS
0.3 V
1
5
A
V
CC
Current
(Automatic Sleep Mode) *
3
I
CC5
V
CC
=
V
CC
Max., CE
=
V
SS
0.3 V,
RESET
=
V
CC
0.3 V
V
IN
=
V
CC
0.3 V or V
SS
0.3 V
1
5
A
V
CC
Active Current *
5
(Read-While-Program)
I
CC6
CE
=
V
IL
, OE
=
V
IH
Byte
56
mA
Word
58
V
CC
Active Current *
5
(Read-While-Erase)
I
CC7
CE
=
V
IL
, OE
=
V
IH
Byte
56
mA
Word
58
V
CC
Active Current
(Erase-Suspend-Program)
I
CC8
CE
=
V
IL
, OE
=
V
IH
40
mA
Input Low Level
V
IL
-
0.5
0.6
V
Input High Level
V
IH
2.0
V
CC
+
0.3
V
Voltage for Autoselect and Sector
Protection (A
9
, OE, RESET) *
4
V
ID
11.5
12
12.5
V
Voltage for WP/ACC Sector
Protection/Unprotection and
Program Acceleration *
4
V
ACC
8.5
9.0
9.5
V
Output Low Voltage Level
V
OL
I
OL
=
100
A, V
CC
=
V
CC
Min.
0.45
V
Output High Voltage Level
V
OH1
I
OH
=
-
2.0 mA, V
CC
=
V
CC
Min.
2.4
V
V
OH2
I
OH
=
-
100
A
V
CC
-
0.4
V
Low V
CC
Lock-Out Voltage
V
LKO
2.3
2.4
2.5
V
MBM29DL640E
80/90/12
41
2.
AC Characteristics
Read Only Operations Characteristics
Note : Test Conditions :
Output Load : 1 TTL gate and 30 pF (MBM29DL640E-80)
1 TTL gate and 100 pF (MBM29DL640E-90/120)
Input rise and fall times : 5 ns
Input pulse levels : 0.0 V to 3.0 V
Timing measurement reference level
Input : 1.5 V
Output : 1.5 V
Parameter
Symbol
Condition
Value (Note)
Unit
80
90
12
JEDEC Standard
Min. Max. Min. Max. Min. Max.
Read Cycle Time
t
AVAV
t
RC
80
90
120
ns
Address to Output Delay
t
AVQV
t
ACC
CE
=
V
IL
OE
=
V
IL
80
90
120
ns
Chip Enable to Output Delay
t
ELQV
t
CE
OE
=
V
IL
80
90
120
ns
Output Enable to Output Delay
t
GLQV
t
OE
30
35
50
ns
Chip Enable to Output High-Z
t
EHQZ
t
DF
25
30
30
ns
Output Enable to Output High-Z
t
GHQZ
t
DF
25
30
30
ns
Output Hold Time From Addresses,
CE or OE, Whichever Occurs First
t
AXQX
t
OH
0
0
0
ns
RESET Pin Low to Read Mode
t
READY
20
20
20
s
CE to BYTE Switching Low or High
t
ELFL
t
ELFH
5
5
5
ns
C
L
3.3 V
Diodes
=
IN3064
or equivalent
2.7 k
Device
Under
Test
IN3064
or equivalent
6.2 k
Figure 4
Test Conditions
MBM29DL640E
80/90/12
42
Write/Erase/Program Operations
(Continued)
Parameter
Symbol
Value
Unit
80
90
12
JEDEC Standard Min. Typ. Max. Min. Typ. Max. Min. Typ. Max.
Write Cycle Time
t
AVAV
t
WC
80
90
120
ns
Address Setup Time
t
AVWL
t
AS
0
0
0
ns
Address Setup Time to OE Low
During Toggle Bit Polling
t
ASO
12
15
15
ns
Address Hold Time
t
WLAX
t
AH
45
45
50
ns
Address Hold Time from CE or OE
High During Toggle Bit Polling
t
AHT
0
0
0
ns
Data Setup Time
t
DVWH
t
DS
30
35
50
ns
Data Hold Time
t
WHDX
t
DH
0
0
0
ns
Output
Enable
Hold Time
Read
t
OEH
0
0
0
ns
Toggle and Data
Polling
10
10
10
ns
CE High During Toggle Bit Polling
t
CEPH
20
20
20
ns
OE High During Toggle Bit Polling
t
OEPH
20
20
20
ns
Read Recover Time Before Write
t
GHWL
t
GHWL
0
0
0
ns
Read Recover Time Before Write
t
GHEL
t
GHEL
0
0
0
ns
CE Setup Time
t
ELWL
t
CS
0
0
0
ns
WE Setup Time
t
WLEL
t
WS
0
0
0
ns
CE Hold Time
t
WHEH
t
CH
0
0
0
ns
WE Hold Time
t
EHWH
t
WH
0
0
0
ns
Write Pulse Width
t
WLWH
t
WP
35
35
50
ns
CE Pulse Width
t
ELEH
t
CP
35
35
50
ns
Write Pulse Width High
t
WHWL
t
WPH
25
30
30
ns
CE Pulse Width High
t
EHEL
t
CPH
25
30
30
ns
Programming Operation
Byte
t
WHWH1
t
WHWH1
8
8
8
s
Word
16
16
16
s
Sector Erase Operation *
1
t
WHWH2
t
WHWH2
1
1
1
s
V
CC
Setup Time
t
VCS
50
50
50
s
Rise Time to V
ID
*
2
t
VIDR
500
500
500
ns
Rise Time to V
ACC
*
3
t
VACCR
500
500
500
ns
Voltage Transition Time *
2
t
VLHT
4
4
4
s
Write Pulse Width *
2
t
WPP
100
100
100
s
MBM29DL640E
80/90/12
43
(Continued)
*1: This does not include preprogramming time.
*2: This timing is for Sector Group Protection operation.
*3: This timing is for Accelerated Program operation.
Parameter
Symbol
Value
Unit
80
90
12
JEDEC Standard Min. Typ. Max. Min. Typ. Max. Min. Typ. Max.
OE Setup Time to WE Active *
2
t
OESP
4
4
4
s
CE Setup Time to WE Active *
2
t
CSP
4
4
4
s
Recover Time from RY/BY
t
RB
0
0
0
ns
RESET Pulse Width
t
RP
500
500
500
ns
RESET High Level Period Before
Read
t
RH
200
200
200
ns
BYTE Switching Low to Output
High-Z
t
FLQZ
30
30
40
ns
BYTE Switching High to Output
Active
t
FHQV
80
90
120
ns
Program/Erase Valid to RY/BY
Delay
t
BUSY
90
90
90
ns
Delay Time from Embedded
Output Enable
t
EOE
80
90
120
ns
Erase Time-out Time
t
TOW
50
50
50
s
Erase Suspend Transition Time
t
SPD
20
20
20
s
MBM29DL640E
80/90/12
44
s
s
s
s
ERASE AND PROGRAMMING PERFORMANCE
s
s
s
s
TSOP (I) PIN CAPACITANCE
Note : Test conditions Ta
=
25
C, f
=
1.0 MHz
s
s
s
s
FBGA PIN CAPACITANCE
Note : Test conditions Ta
=
25
C, f
=
1.0 MHz
Parameter
Limits
Unit
Comments
Min.
Typ.
Max.
Sector Erase Time
1
10
s
Excludes programming time
prior to erasure
Word Programming Time
16
360
s
Excludes system-level
overhead
Byte Programming Time
8
300
s
Chip Programming Time
200
s
Excludes system-level
overhead
Program/Erase Cycle
100,000
cycle
Parameter
Symbol
Condition
Value
Unit
Typ.
Max.
Input Capacitance
C
IN
V
IN
=
0
6
7.5
pF
Output Capacitance
C
OUT
V
OUT
=
0
8.5
12
pF
Control Pin Capacitance
C
IN2
V
IN
=
0
8
11
pF
WP/ACC Pin Capacitance
C
IN3
V
IN
=
0
9
11
pF
Parameter
Symbol
Condition
Value
Unit
Typ.
Max.
Input Capacitance
C
IN
V
IN
=
0
TBD
TBD
pF
Output Capacitance
C
OUT
V
OUT
=
0
TBD
TBD
pF
Control Pin Capacitance
C
IN2
V
IN
=
0
TBD
TBD
pF
WP/ACC Pin Capacitance
C
IN3
V
IN
=
0
TBD
TBD
pF
MBM29DL640E
80/90/12
45
s
s
s
s
TIMING DIAGRAM
Key to Switching Waveforms
WAVEFORM
INPUTS
OUTPUTS
Must Be
Steady
May
Change
from H to L
May
Change
from L to H
"H" or "L":
Any Change
Permitted
Does Not
Apply
Will Be
Steady
Will
Change
from H to L
Will
Change
from L to H
Changing,
State
Unknown
Center Line is
High-
Impedance
"Off" State
Address
Address Stable
High-Z
High-Z
CE
OE
WE
Outputs
Outputs Valid
t
RC
t
ACC
t
OE
t
DF
t
CE
t
OH
t
OEH
Figure 5.1
Read Operation Timing Diagram
MBM29DL640E
80/90/12
46
Address
CE
RESET
Outputs
High-Z
Outputs Valid
Address Stable
t
RC
t
ACC
t
RH
t
RP
t
RH
t
CE
t
OH
Figure 5.2
Hardware Reset/Read Operation Timing Diagram
MBM29DL640E
80/90/12
47
Address
Data
CE
OE
WE
3rd Bus Cycle
Data Polling
555h
PA
A0h
PD
DQ
7
D
OUT
D
OUT
PA
t
WC
t
AS
t
AH
t
RC
t
CE
t
WHWH1
t
WPH
t
WP
t
GHWL
t
DS
t
DH
t
DF
t
OH
t
OE
t
CS
t
CH
Notes : 1.
PA is address of the memory location to be programmed.
2.
PD is data to be programmed at word address.
3.
DQ
7
is the output of the complement of the data written to the device.
4.
D
OUT
is the output of the data written to the device.
5.
Figure indicates last two bus cycles out of four bus cycle sequence.
6.
These waveforms are for the
16 mode. (The addresses differ from
8 mode.)
Figure 6
Alternate WE Controlled Program Operation Timing Diagram
MBM29DL640E
80/90/12
48
Address
Data
WE
OE
CE
3rd Bus Cycle
Data Polling
555h
PA
A0h
PD
DQ
7
D
OUT
PA
t
WC
t
AS
t
AH
t
WHWH1
t
CPH
t
CP
t
GHEL
t
DS
t
DH
t
WS
t
WH
Figure 7
Alternate CE Controlled Program Operation Timing Diagram
Notes : 1.
PA is address of the memory location to be programmed.
2.
PD is data to be programmed at word address.
3.
DQ
7
is the output of the complement of the data written to the device.
4.
D
OUT
is the output of the data written to the device.
5.
Figure indicates last two bus cycles out of four bus cycle sequence.
6.
These waveforms are for the
16 mode. (The addresses differ from
8 mode.)
MBM29DL640E
80/90/12
49
Address
Data
V
CC
CE
OE
WE
555h
2AAh
555h
555h
2AAh
SA*
t
WC
t
AS
t
AH
t
CS
t
GHWL
t
CH
t
WP
t
DS
t
VCS
t
DH
t
WPH
AAh
55h
80h
AAh
55h
10h
30h for Sector Erase
Figure 8
Chip/Sector Erase Operation Timing Diagram
* : SA is the sector address for Sector Erase. Addresses
=
555h (Word) for Chip Erase.
Note : These waveforms are for the
16 mode. (The addresses differ from
8 mode.)
MBM29DL640E
80/90/12
50
Figure 9
Data Polling during Embedded Algorithm Operation Timing Diagram
* : DQ
7
=
Valid Data (The device has completed the Embedded operation) .
t
OEH
t
CH
t
OE
t
CE
t
DF
t
BUSY
t
EOE
t
WHWH1 or 2
CE
DQ
7
DQ
6
to DQ
0
RY/BY
DQ
7
DQ
7
=
Valid Data
DQ
6
to DQ
0
=
Output Flag
DQ
6
to DQ
0
Valid Data
OE
WE
High-Z
High-Z
Data
Data
*
MBM29DL640E
80/90/12
51
t
DH
t
OE
t
CE
CE
WE
OE
DQ
6
/DQ
2
Address
RY/BY
Data
Toggle
Data
Toggle
Data
Toggle
Data
Stop
Toggling
Output
Valid
*
t
BUSY
t
OEH
t
OEH
t
OEPH
t
AHT
t
AHT
t
ASO
t
AS
t
CEPH
Figure 10 AC Waveforms for Toggle Bit I during Embedded Algorithm Operations
* : DQ
6
stops toggling (The device has completed the Embedded operation).
MBM29DL640E
80/90/12
52
CE
DQ
WE
Address
BA1
BA1
BA1
BA2
(555h)
BA2
(PA)
BA2
(PA)
OE
Valid
Output
Valid
Output
Valid
Output
Status
Valid
Intput
Valid
Intput
t
RC
t
RC
t
RC
t
RC
t
WC
t
WC
t
AHT
t
AS
t
AS
t
AH
t
ACC
t
CE
t
OE
t
OEH
t
WP
t
GHWL
t
DS
t
DF
t
DH
t
DF
t
CEPH
Read
Command
Command
Read
Read
Read
(A0H)
(PD)
Figure 11
Bank-to-Bank Read/Write Timing Diagram
Note : This is example of Read for Bank 1 and Embedded Algorithm (program) for Bank 2.
BA1 : Address corresponding to Bank 1
BA2 : Address corresponding to Bank 2
Figure 12
DQ
2
vs. DQ
6
Note : DQ
2
is read from the erase-suspended sector.
Enter
Embedded
Erasing
Erase
Suspend
Erase
Resume
Enter Erase
Suspend Program
Erase
Suspend
Program
Erase
Complete
Erase
Erase Suspend
Read
Erase Suspend
Read
Erase
DQ
6
DQ
2
WE
Toggle
DQ
2
and DQ
6
with OE
MBM29DL640E
80/90/12
53
Figure 13
RY/BY Timing Diagram during Program/Erase Operation Timing Diagram
CE
RY/BY
WE
The rising edge of the last WE signal
t
BUSY
Entire programming
or erase operations
Figure 14
RESET, RY/BY Timing Diagram
t
RP
t
RB
t
READY
RY/BY
WE
RESET
MBM29DL640E
80/90/12
54
Figure 15
Timing Diagram for Word Mode Configuration
t
CE
t
FHQV
t
ELFH
A
-1
Data Output
(DQ
7
to DQ
0
)
Data Output
(DQ
14
to DQ
0
)
DQ
15
CE
BYTE
DQ
14
to DQ
0
DQ
15
/A
-1
Figure 16
Timing Diagram for Byte Mode Configuration
t
ELFL
t
ACC
t
FLQZ
A
-1
Data Output
(DQ
14
to DQ
0
)
Data Output
(DQ
7
to DQ
0
)
DQ
15
CE
BYTE
DQ
14
to DQ
0
DQ
15
/A
-1
Figure 17
BYTE Timing Diagram for Write Operations
t
AS
t
AH
CE or WE
BYTE
Input
Valid
Falling edge of the last write signal
MBM29DL640E
80/90/12
55
t
WPP
t
VLHT
t
VLHT
t
OE
t
CSP
t
OESP
t
VCS
t
VLHT
t
VLHT
A
21
, A
20
, A
19
A
18
, A
17
, A
16
A
15
, A
14
, A
13
A
12
A
6
, A
3
, A
2
, A
0
A
1
A
9
V
CC
OE
V
ID
V
IH
V
ID
V
IH
WE
CE
Data
SPAX
01h
SPAY
Figure 18
Sector Group Protection Timing Diagram
SPAX : Sector Group Address to be protected
SPAY : Next Sector Group Address to be protected
Note : A-
1
is V
IL
on byte mode.
MBM29DL640E
80/90/12
56
Figure 19
Temporary Sector Group Unprotection Timing Diagram
Unprotection period
t
VLHT
t
VLHT
t
VCS
t
VLHT
t
VIDR
Program or Erase Command Sequence
V
CC
V
ID
V
IH
WE
RY/BY
CE
RESET
MBM29DL640E
80/90/12
57
Figure 20
Extended Sector Group Protection Timing Diagram
SPAX : Sector Group Address to be protected
SPAY : Next Sector Group Address to be protected
TIME-OUT : Time-Out window
=
250
s (Min.)
V
CC
WE
OE
CE
RESET
t
WC
t
WC
t
VLHT
t
VIDR
t
VCS
TIME-OUT
SPAX
SPAX
SPAY
t
WP
t
OE
60h
01h
40h
60h
60h
Data
Address
A
6
, A
3
,
A
2
, A
0
A
1
MBM29DL640E
80/90/12
58
Figure 21
Accelerated Program Timing Diagram
V
IH
WP/ACC
VCC
CE
WE
RY/BY
t
VLHT
Program or Erase Command Sequence
t
VLHT
t
VCS
t
VACCR
VACC
t
VLHT
Acceleration period
MBM29DL640E
80/90/12
59
s
s
s
s
FLOW CHART
Figure 22
Embedded Program
TM
Algorithm
Note : The sequence is applied for
16 mode.
The addresses differ from
8 mode.
EMBEDDED ALGORITHM
555h/AAh
555h/A0h
2AAh/55h
Program Address/Program Data
Programming Completed
Last Address
?
Increment Address
Verify Data
?
Data Polling
Program Command Sequence (Address/Command)
:
Write Program
Command Sequence
(See Below)
Start
No
No
Yes
Yes
Embedded
Program
Algorithm
in program
MBM29DL640E
80/90/12
60
Figure 23
Embedded Erase
TM
Algorithm
Note : The sequence is applied for
16 mode.
The addresses differ from
8 mode.
EMBEDDED ALGORITHM
555h/AAh
555h/80h
2AAh/55h
555h/AAh
555h/10h
2AAh/55h
555h/AAh
555h/80h
2AAh/55h
555h/AAh
Sector Address
/30h
Sector Address
/30h
Sector Address
/30h
2AAh/55h
Erasure Completed
Data
=
FFh
?
Data Polling
Write Erase
Command Sequence
(See Below)
Start
No
Yes
Embedded
Erase
Algorithm
in progress
Chip Erase Command Sequence
(Address/Command)
:
Individual Sector/Multiple Sector
Erase Command Sequence
(Address/Command)
:
Additional sector
erase commands
are optional.
MBM29DL640E
80/90/12
61
Figure 24
Data Polling Algorithm
* : DQ
7
is rechecked even if DQ
5
=
"1" because DQ
7
may change simultaneously with DQ
5
.
VA
=
Address for programming
=
Any of the sector addresses
within the sector being erased
during sector erase or multiple
erases operation.
=
Any of the sector addresses
within the sector not being
protected during sector erase or
multiple sector erases
operation.
DQ
7
=
Data?
DQ
5
=
1?
Fail
Pass
DQ
7
=
Data?
*
Read Byte
(DQ
7
to DQ
0
)
Addr.
=
VA
Read Byte
(DQ
7
to DQ
0
)
Addr.
=
VA
Start
No
No
No
Yes
Yes
Yes
MBM29DL640E
80/90/12
62
Figure 25
Toggle Bit Algorithm
*1 : Read toggle bit twice to determine whether or not it is toggling.
*2 : Recheck toggle bit because it may stop toggling as DQ
5
changes to "1".
Toggle Bit
=
Toggle?
DQ
5
=
1?
Toggle Bit
=
Toggle?
Read DQ
7
to DQ
0
Addr.
=
VA
Read DQ
7
to DQ
0
Addr.
=
VA
Read DQ
7
to DQ
0
Twice
Addr.
=
VA
Start
No
No
No
Yes
Yes
Yes
*1
*1, 2
Program/Erase
Operation Not
Complete.Write
Reset Command
Program/Erase
Operation
Complete
VA
=
Bank address being executed
Embedded Algorithm.
MBM29DL640E
80/90/12
63
Start
No
No
No
Yes
Yes
Yes
Data
=
01h?
Device Failed
PLSCNT
=
25?
PLSCNT
=
1
Remove V
ID
from A
9
Write Reset Command
Remove V
ID
from A
9
Write Reset Command
Sector Group Protection
Completed
Protect Another Sector
Group?
Increment PLSCNT
Read from Sector Group
Addr.
=
SPA, A
1
=
V
IH
A
6
=
A
3
=
A
2
=
A
0
=
V
IL
Setup Sector Group Addr.
A
21
, A
20
, A
19
, A
18
, A
17
,
A
16
, A
15
, A
14
, A
13
, A
12
OE
=
V
ID
, A
9
=
V
ID
CE
=
V
IL
, RESET
=
V
IH
A
6
=
A
3
=
A
2
=
A
0
=
V
IL
, A
1
=
V
IH
Activate WE Pulse
Time out 100
s
WE
=
V
IH
, CE
=
OE
=
V
IL
(A
9
should remain V
ID
)
(
)
(
)
*
Figure 26
Sector Group Protection Algorithm
* : A
-1
is V
IL
in byte mode.
MBM29DL640E
80/90/12
64
Start
Perform Erase or
Program Operations
RESET
=
V
ID
*1
RESET
=
V
IH
Temporary Sector Group
Unprotection Completed
*2
Figure 27
Temporary Sector Group Unprotection Algorithm
*1 : All protected sectors are unprotected.
*2 : All previously protected sectors are reprotected.
MBM29DL640E
80/90/12
65
Start
No
Yes
Yes
Data
=
01h?
PLSCNT
=
1
No
No
Yes
Device Failed
PLSCNT
=
25?
Remove V
ID
from RESET
Write Reset Command
Sector Protection
Completed
Protect Other Sector
Group?
Increment PLSCNT
Read from Sector Group Address
(Addr.
=
SPA, A
0
=
V
IL
,
A
1
=
V
IH
, A
6
=
V
IL
)
Remove V
ID
from RESET
Write Reset Command
Time out 250
s
RESET
=
V
ID
Wait to 4
s
No
Yes
Setup Next Sector Address
Device is Operating in
Temporary Sector Group
Unprotection Mode
To Protect Sector Group
Write 60h to Sector Address
(A
6
=
A
3
=
A
2
=
A
0
=
V
IL
, A
1
=
V
IH
)
To Verify Sector Group Protection
Write 40h to Sector Address
(A
6
=
A
3
=
A
2
=
A
0
=
V
IL
, A
1
=
V
IH
)
To Setup Sector Group Protection
Write XXXh/60h
Extended Sector Group
Protection Entry?
Figure 28
Extended Sector Group Protection Algorithm
MBM29DL640E
80/90/12
66
555h/AAh
555h/20h
XXXh/90h
XXXh/F0h
XXXh/A0h
2AAh/55h
Program Address/Program Data
Programming Completed
Last Address?
Increment Address
Verify Data?
Data Polling
Start
No
No
Yes
Yes
Set Fast Mode
In Fast Program
Reset Fast Mode
(BA)
Figure 29
Embedded Programming Algorithm for Fast Mode
Notes:
The sequence is applied for
16 mode.
The addresses differ from
8 mode.
FAST MODE ALGORITHM
MBM29DL640E
80/90/12
67
s
s
s
s
ORDERING INFORMATION
Standard Products
Fujitsu standard products are available in several packages. The order number is formed by a combination of :
MBM29DL640
E
80
TN
DEVICE NUMBER/DESCRIPTION
MBM29DL640
64 Mega-bit (8 M
8-Bit or 4 M
16-Bit) CMOS Flash Memory
3.0 V-only Read, Program, and Erase
PACKAGE TYPE
TN
=
48-Pin Thin Small Outline Package
(TSOP) Standard Pinout
TR
=
48-Pin Thin Small Outline Package
(TSOP) Reverse Pinout
PBT
=
63-Ball Fine pitch Ball Grid Array
Package (FBGA)
SPEED OPTION
See Product Selector Guide
DEVICE REVISION
Valid Combinations
MBM29DL640E
80
90
12
TN
TR
PBT
Valid Combinations
Valid Combinations list configurations planned to
be supported in volume for this device. Consult
the local Fujitsu sales office to confirm availability
of specific valid combinations and to check on
newly released combinations.
MBM29DL640E
80/90/12
68
s
s
s
s
PACKAGE DIMENSIONS
48-pin plastic TSOP (I)
(FPT-48P-M19)
* Resin Protrusion. (Each Side : 0.15 (.006) Max)
Dimensions in mm (inches)
C
1996 FUJITSU LIMITED F48029S-2C-2
Details of "A" part
0.15(.006)
MAX
0.35(.014)
MAX
0.15(.006)
0.25(.010)
INDEX
"A"
18.400.20
(.724.008)
20.000.20
(.787.008)
19.000.20
(.748.008)
0.10(.004)
0.500.10
(.020.004)
0.150.05
(.006.002)
11.50REF
(.460)
0.50(.0197)
TYP
0.200.10
(.008.004)
0.05(0.02)MIN
.043
.002
+.004
0.05
+0.10
1.10
M
0.10(.004)
STAND OFF
1
24
25
48
LEAD No.
*
*
12.000.20
(.472.008)
(Mounting height)
MBM29DL640E
80/90/12
69
48-pin plastic TSOP (I)
(FPT-48P-M20)
* Resin Protrusion. (Each Side : 0.15 (.006) Max)
Dimensions in mm (inches)
C
1996 FUJITSU LIMITED F48030S-2C-2
Details of "A" part
0.15(.006)
MAX
0.35(.014)
MAX
0.15(.006)
0.25(.010)
INDEX
"A"
18.400.20
(.724.008)
20.000.20
(.787.008)
19.000.20
(.748.008)
0.10(.004)
0.500.10
(.020.004)
0.150.10
(.006.002)
11.50(.460)REF
0.50(.0197)
TYP
0.200.10
(.008.004)
0.05(0.02)MIN
.043
.002
+.004
0.05
+0.10
1.10
M
0.10(.004)
STAND OFF
1
24
25
48
LEAD No.
*
*
12.000.20(.472.008)
(Mounting height)
MBM29DL640E
80/90/12
70
63-ball plastic FBGA
(BGA-63P-M02)
Dimensions in mm (inches)
C
1999 FUJITSU LIMITED B63002S-1C-1
11.000.10(.433.004)
.041
.004
+.006
0.10
+0.15
1.05
(Mounting height)
1
2
3
4
5
6
7
8
A
B
C
D
E
F
G
H
0.80(.031)TYP
(5.60(.220))
(5.60(.220))
INDEX BALL
M
0.08(.003)
0.10(.004)
INDEX AREA
10.000.10
(.394.004)
(7.20(.283))
J
K
(63-0.18.002)
63-0.450.05
M
L
(8.80(.346))
(4.00(.157))
0.380.10
(.015.004)
(Stand off)
MBM29DL640E
80/90/12
FUJITSU LIMITED
For further information please contact:
Japan
FUJITSU LIMITED
Corporate Global Business Support Division
Electronic Devices
Shinjuku Dai-Ichi Seimei Bldg. 7-1,
Nishishinjuku 2-chome, Shinjuku-ku,
Tokyo 163-0721, Japan
Tel: +81-3-5322-3347
Fax: +81-3-5322-3386
http://edevice.fujitsu.com/
North and South America
FUJITSU MICROELECTRONICS, INC.
3545 North First Street,
San Jose, CA 95134-1804, U.S.A.
Tel: +1-408-922-9000
Fax: +1-408-922-9179
Customer Response Center
Mon. - Fri.: 7 am - 5 pm (PST)
Tel: +1-800-866-8608
Fax: +1-408-922-9179
http://www.fujitsumicro.com/
Europe
FUJITSU MICROELECTRONICS EUROPE GmbH
Am Siebenstein 6-10,
D-63303 Dreieich-Buchschlag,
Germany
Tel: +49-6103-690-0
Fax: +49-6103-690-122
http://www.fujitsu-fme.com/
Asia Pacific
FUJITSU MICROELECTRONICS ASIA PTE. LTD.
#05-08, 151 Lorong Chuan,
New Tech Park,
Singapore 556741
Tel: +65-281-0770
Fax: +65-281-0220
http://www.fmap.com.sg/
Korea
FUJITSU MICROELECTRONICS KOREA LTD.
1702 KOSMO TOWER, 1002 Daechi-Dong,
Kangnam-Gu,Seoul 135-280
Korea
Tel: +82-2-3484-7100
Fax: +82-2-3484-7111
F0101
FUJITSU LIMITED Printed in Japan
All Rights Reserved.
The contents of this document are subject to change without notice.
Customers are advised to consult with FUJITSU sales
representatives before ordering.
The information and circuit diagrams in this document are
presented as examples of semiconductor device applications, and
are not intended to be incorporated in devices for actual use. Also,
FUJITSU is unable to assume responsibility for infringement of
any patent rights or other rights of third parties arising from the use
of this information or circuit diagrams.
The contents of this document may not be reproduced or copied
without the permission of FUJITSU LIMITED.
FUJITSU semiconductor devices are intended for use in standard
applications (computers, office automation and other office
equipments, industrial, communications, and measurement
equipments, personal or household devices, etc.).
CAUTION:
Customers considering the use of our products in special
applications where failure or abnormal operation may directly
affect human lives or cause physical injury or property damage, or
where extremely high levels of reliability are demanded (such as
aerospace systems, atomic energy controls, sea floor repeaters,
vehicle operating controls, medical devices for life support, etc.)
are requested to consult with FUJITSU sales representatives before
such use. The company will not be responsible for damages arising
from such use without prior approval.
Any semiconductor devices have inherently a certain rate of failure.
You must protect against injury, damage or loss from such failures
by incorporating safety design measures into your facility and
equipment such as redundancy, fire protection, and prevention of
over-current levels and other abnormal operating conditions.
If any products described in this document represent goods or
technologies subject to certain restrictions on export under the
Foreign Exchange and Foreign Trade Control Law of Japan, the
prior authorization by Japanese government should be required for
export of those products from Japan.